$675,000
  • 2 beds
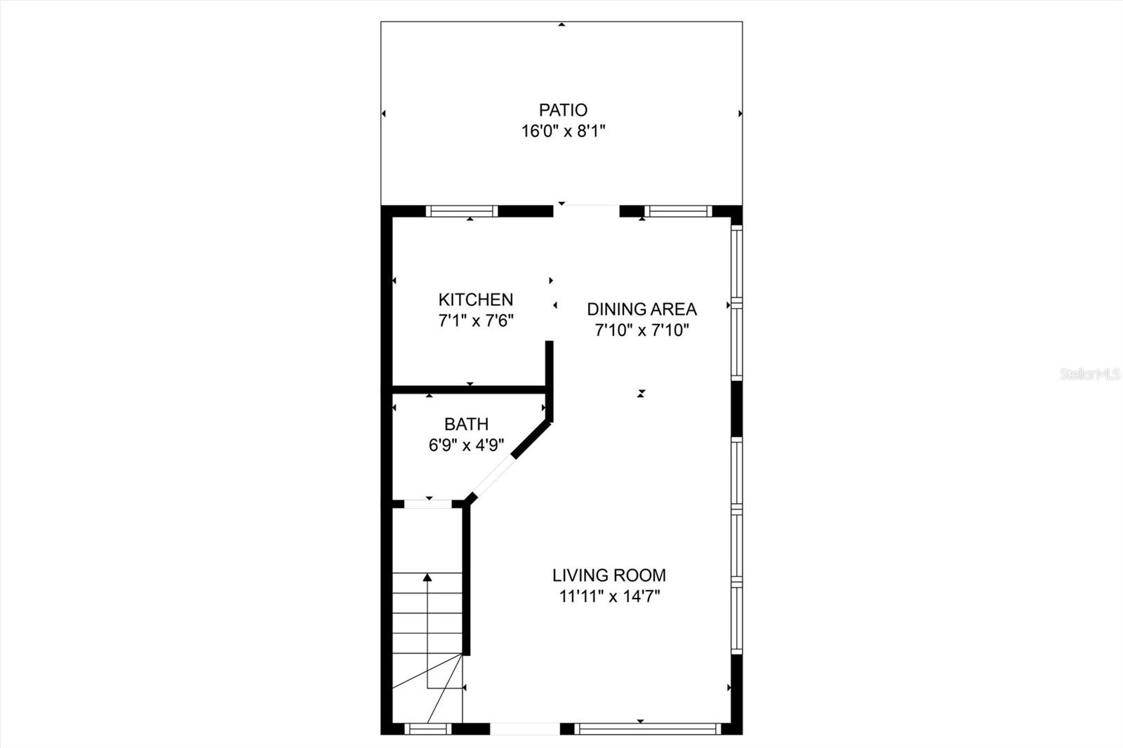
  • 1 baths
  • 834 sqft
  • 6.22 acres
  • 1964 year built

Welcome to your coastal retreat on world-renowned Siesta Key! Located in the highly sought-after Aloha Kai beachfront community, this updated 2-bedroom, 1.5-bath villa is offered turnkey furnished and ready to enjoy. This property allows for short-term rentals, offering exceptional potential as both a personal getaway and income-producing investment. The villa has been thoughtfully updated with a newer metal roof (2020), new impact-rated windows, new impact-rated front door, upgraded 200-amp electrical panel, and a 2023 water heater. The kitchen features newer cabinets, countertops, and appliances, creating a clean, coastal aesthetic. The first floor of the villa experienced water intrusion during Hurricane Milton. The owners completed professional remediation, including a fully permitted renovation and a mold inspection that tested negative. All work was done to high standards and is well-documented for peace of mind. Set in a lush tropical setting, Aloha Kai is a beachfront co-op community with direct private access to Siesta Key Beach, a heated Olympic-size pool, shuffleboard courts, clubhouse, and on-site management. The community’s flexible rental policy allows for strong occupancy and return on investment. This is your opportunity to own a beautifully updated, furnished villa in a premier location — ideal for seasonal living, investment, or both. Buyer to verify all room dimensions and rental guidelines with the co-op and management. OWNER FINANCING AVAILABLE!

 



6020 MIDNIGHT PASS ROAD

Inquire about this home

Berkshire Hathaway HomeServices
Florida Realty

3192 Fruitville Rd, Sarasota, FL 34237


Explore: Aloha Kai Apts


Similar Listings

More Condo - Hotel for sale near Aloha Kai Apts in SARASOTA Florida


$849K 5963 MIDNIGHT PASS RD #362 SARASOTA FL 34242

$675K 6020 MIDNIGHT PASS RD #49 SARASOTA FL 34242

$649K 6732 SARASEA CIR #104C SARASOTA FL 34242

Listing Broker: PREFERRED SHORE LLC
Last Changed: Saturday 14th of March 2026 11:51:08 AM

All listing information is deemed reliable but not guaranteed and should be independently verified through personal inspection by appropriate professionals. Listings displayed on this website may be subject to prior sale or removal from sale; vailability of any listing should always be independently verified. Listing information is provided for consumer personal, non-commercial use, solely to identify potential properties for potential purchase; all other use is strictly prohibited and may violate relevant federal and state law. Copyright 2021 , Stellar MLS.