$5,899,000
  • 5 beds
  • 5 baths
  • 4195 sqft
  • 0.26 acres
  • 2026 year built

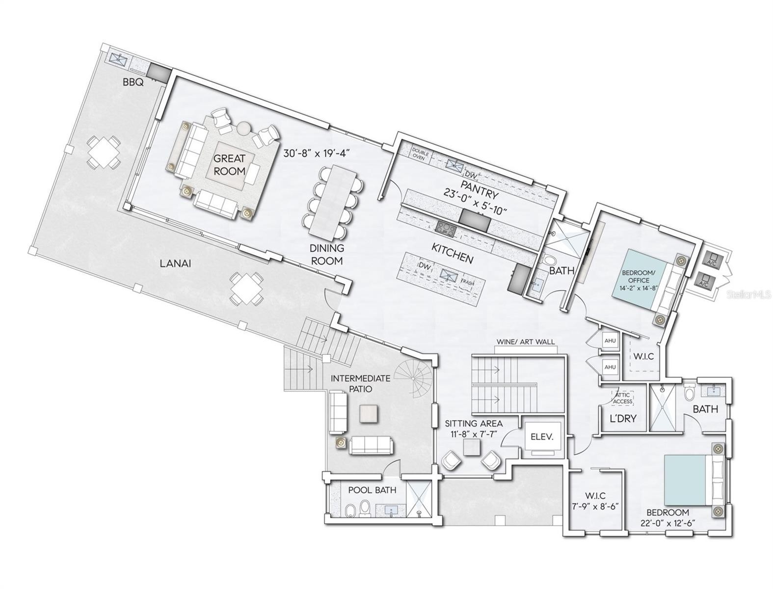
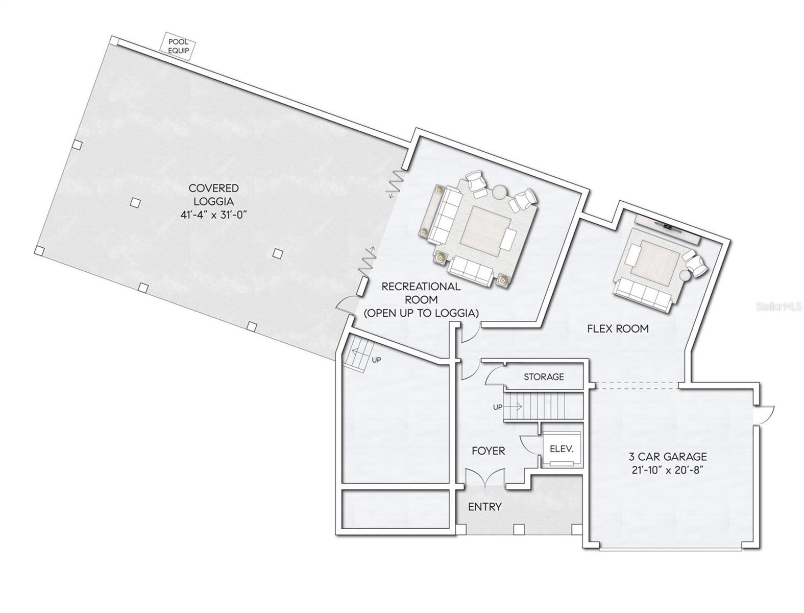
One or more photo(s) has been virtually staged. Pre-Construction. To be built. EXQUISITE NEW CONSTRUCTION ON SIESTA KEY: ISLAND LUXURY REDEFINED | Estimated to be substantially completed by 3/31/2026 | A rare opportunity to own a meticulously designed custom residence on a prime corner parcel of approximately one-quarter acre, just blocks from world-renowned Siesta Key Beach. Easily accessible from both the north and south bridges, this exceptional new build delivers the ultimate coastal lifestyle where refined interiors meet effortless outdoor living. | SIESTA Key Beach is frequently recognized as one of the best beaches in the U.S. and worldwide, celebrated for its powder quartz sand and crystal-clear waters. Its global reputation has been affirmed by TripAdvisor’s Travelers’ Choice Best of the Best Beaches and Dr. Beach’s annual rankings, making this location as iconic as it is desirable. | MOMENTS from Siesta Key Village, enjoy efficient access to boutique shopping, coffee shops, and acclaimed dining while still benefiting from an extraordinary amenity, your own private boat dock access on the canal just across the street. Spend the day boating and return home with ease, parking your vessel at your own dock, a true island luxury. | THIS thoughtfully curated residence reflects the vision of a hands-on developer deeply involved in every aspect of design, from interior finish selections to landscaping and amenities. Created for buyers who appreciate craftsmanship and fine detail, the home offers 4,195 sq ft of interior living space and an additional 3,756 sq ft of outdoor living, seamlessly blending indoor and outdoor environments. | THE chef’s kitchen is designed for both entertaining and everyday ease, complete with a “dirty kitchen” for behind-the-scenes preparation. The light-filled great room opens to a nearly 50-foot wraparound terrace, creating a spectacular setting for hosting family and friends. | TWO bedrooms are located on the main living level, ideal for guest suites or a secondary primary. Take the stairs or elevator one level up to access the private primary suite featuring a truly custom bath with bespoke tile, finishes, soaking tub and spacious shower that creates a spa-like retreat. Two additional bedrooms with a shared bath complete the upper-level.| FLEXIBLE, elegant, and intelligently executed, the suite of spaces within this home allows effortless tailoring to any family’s lifestyle from multi-generational living to a dynamic entertainer’s paradise. | IMAGINE a home where the luxuries of island beach life blend with a private, resort-style retreat: *Inground pool & spa for cooling off or casual lounging*Rooftop deck for sunset cocktails and starlit conversation*Private boating access just steps from your front door. | AND, when you’re ready for a taste of city life, Downtown Sarasota’s rich cultural tapestry with its farmers markets, arts, galleries, festivals, waterfront parks, and world-class dining is only a short drive away. |THIS is more than a home, it’s an invitation to own your piece of the new Siesta Key lifestyle: elevated, effortless, and extraordinary.

 



539 AVENIDA DEL NORTE

Inquire about this home

Berkshire Hathaway HomeServices
Florida Realty

3192 Fruitville Rd, Sarasota, FL 34237


Explore: Archibald Resub


Similar Listings

More Single Family Residence for sale near Archibald Resub in SARASOTA Florida


$7.5M 5179 HIDDEN HARBOR RD SARASOTA FL 34242

$7.5M 4205 HIGEL AVE SARASOTA FL 34242

$7.4M 8585 MIDNIGHT PASS RD SARASOTA FL 34242

Listing Broker: DOUGLAS ELLIMAN
Last Changed: Saturday 14th of February 2026 01:58:09 AM

All listing information is deemed reliable but not guaranteed and should be independently verified through personal inspection by appropriate professionals. Listings displayed on this website may be subject to prior sale or removal from sale; vailability of any listing should always be independently verified. Listing information is provided for consumer personal, non-commercial use, solely to identify potential properties for potential purchase; all other use is strictly prohibited and may violate relevant federal and state law. Copyright 2021 , Stellar MLS.