$416,500
  • 2 beds
  • 1 baths
  • 1036 sqft
  • acres
  • 1975 year built

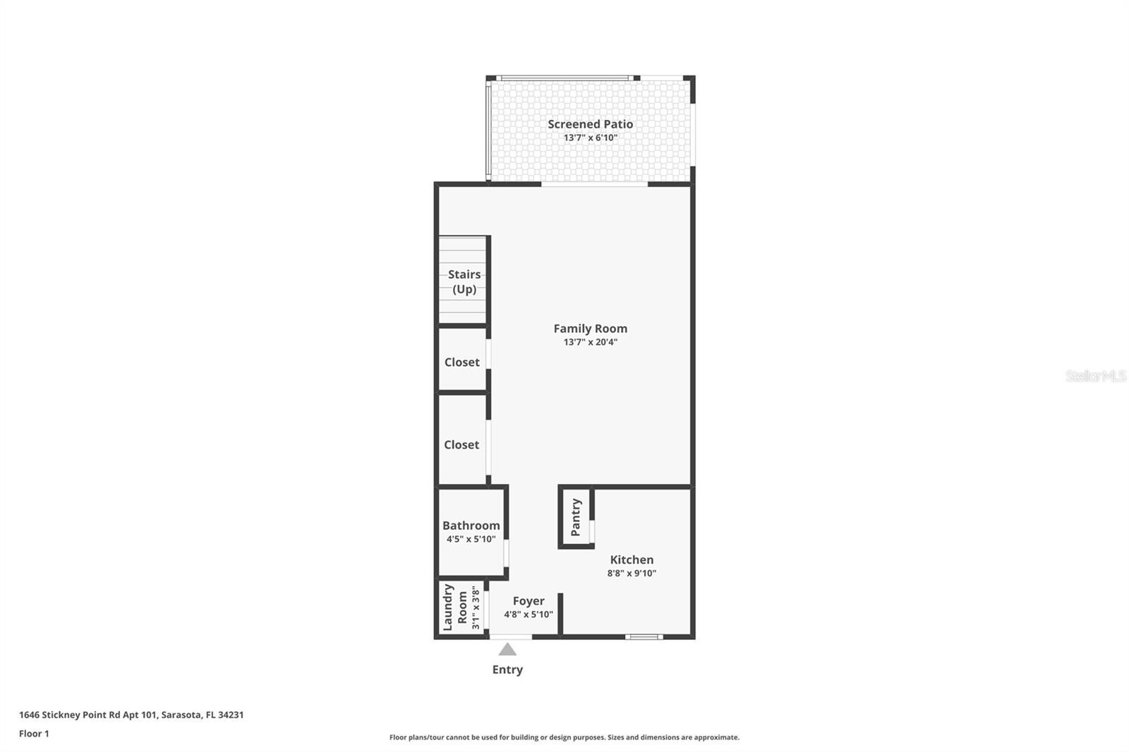
LOCATION, LOCATION, LOCATION!! 10 MIN WALK TO SIESTA KEY BEACH AND LESS THAN 10 MINUTES TO MULTIPLE RESTAURANTS, SHOPS AND BARS!!! COMMUNITY POOL DIRECTLY ON INTERCOASTAL!! Bathed in natural light and surrounded by lush greenery, this turnkey-furnished two-bedroom, one-and-a-half bath townhouse offers a rare and refined living experience within Castel Del Mare. With 1,036 square feet under air and 1,232 total square feet, the residence is distinguished by two private outdoor retreats—a covered, screened ground-level lanai and an open second-floor balcony, a coveted design found in only eight homes in the entire community. Southern exposure enhances sunlight, privacy, and tranquil greenbelt views from both levels. The entry welcomes you with a beautifully remodeled half bath and an interior utility closet with a stacked washer and dryer—an uncommon feature in this complex. Thoughtful storage continues beneath the staircase, where a generous under-stair storage area houses the newer HVAC system (2020) and hot water heater (2017). The kitchen has been tastefully updated and had new stainless steel appliances installed in 2022. The living and dining area flows seamlessly to the screened lanai, where serene views of mature trees and open green space create a peaceful, private setting. Tile flooring throughout the first level adds both elegance and easy maintenance. Upstairs, the carpeted split-bedroom layout provides comfort and privacy. The primary suite is quietly positioned at the rear and opens onto its own private balcony—perfect for morning coffee or evening breezes among the treetops. Both bedrooms feature walk-in closets, along with a hall linen closet and a locked owner’s closet within the primary suite. The primary bath includes dual-sink vanity and cabinetry updated in 2022. Assigned parking is located directly in front of the residence, with ample guest parking nearby. Castel Del Mare offers a true resort-style setting, with recent community-wide enhancements including refreshed landscaping, irrigation, pavers, and two newly renovated swimming pools. Additional amenities include tennis and pickleball courts, shuffleboard, a gazebo, fishing pier, natural gas grilling areas, and complimentary bike and kayak storage. Enjoy a 10-minute walk to world-famous Siesta Key Beach, consistently ranked among the best beaches in the world, as well as numerous nearby restaurants and shops—making this an exceptional location for both relaxation and convenience. The monthly HOA fee covers exterior building and roof maintenance, landscaping, recreational amenities, on-site management, strong reserves, basic cable, water, sewer, trash, recycling, and weekly pest control. Ideal as a primary residence, seasonal retreat, or investment opportunity, this home delivers privacy, comfort, and an unbeatable Siesta Key lifestyle just minutes from everything that makes Sarasota so desirable.

 



1646 STICKNEY POINT ROAD

Inquire about this home

Berkshire Hathaway HomeServices
Florida Realty

3192 Fruitville Rd, Sarasota, FL 34237


Explore: Castel Del Mare


Similar Listings

More Townhouse for sale near Castel Del Mare in SARASOTA Florida


$416.5K 1646 STICKNEY POINT RD #1646-101 SARASOTA FL 34231

$400K 1752 STICKNEY POINT RD #102 SARASOTA FL 34231

$359K 1762 STICKNEY POINT RD #204 SARASOTA FL 34231

Listing Broker: BEAR TEAM REAL ESTATE
Last Changed: Thursday 12th of March 2026 11:40:10 AM

All listing information is deemed reliable but not guaranteed and should be independently verified through personal inspection by appropriate professionals. Listings displayed on this website may be subject to prior sale or removal from sale; vailability of any listing should always be independently verified. Listing information is provided for consumer personal, non-commercial use, solely to identify potential properties for potential purchase; all other use is strictly prohibited and may violate relevant federal and state law. Copyright 2021 , Stellar MLS.