$6,500,000
  • 6 beds
  • 7 baths
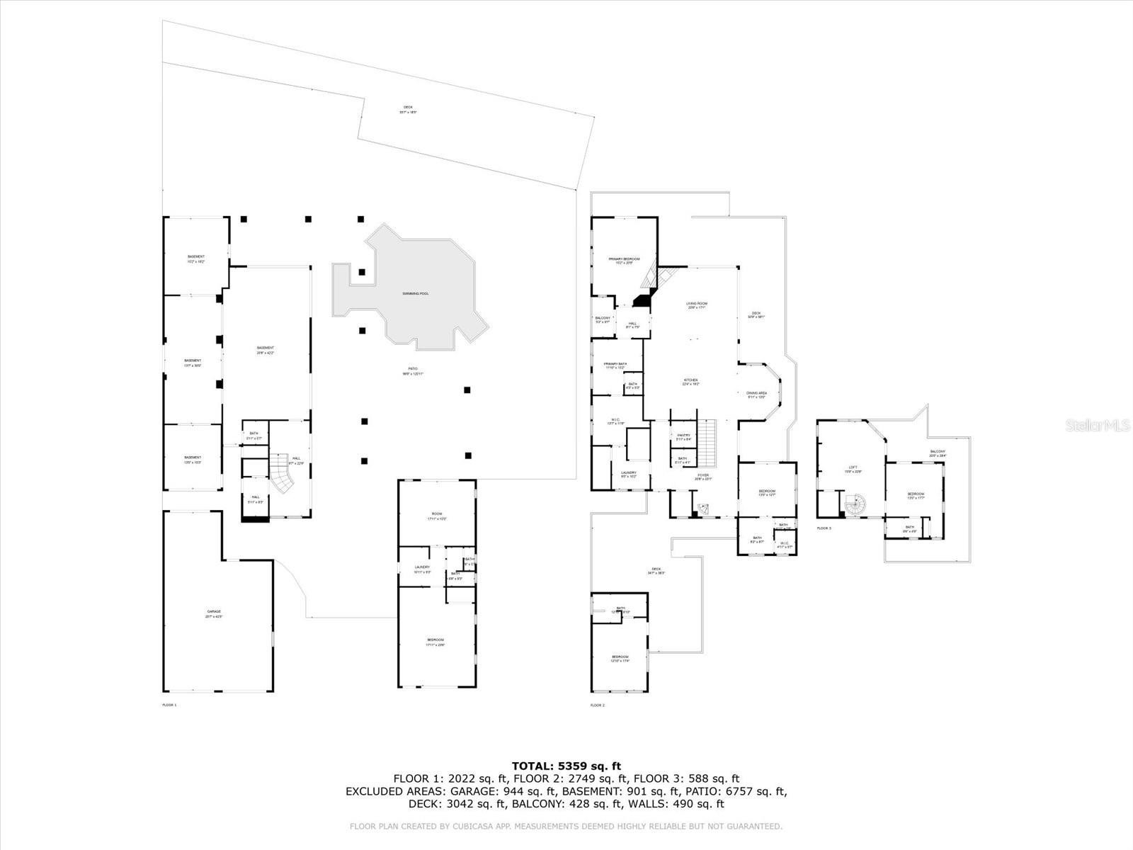
  • 6455 sqft
  • 0.83 acres
  • 2017 year built

Nestled behind custom gates on nearly 0.83 acres of lushly landscaped tropical grounds, this one-of-a-kind, gated bayfront estate blends secluded serenity with unrivaled luxury. Moments by boat from the Gulf of Mexico, the property welcomes you via a sweeping drive lined with palms, revealing a motor court that provides access to the main residence, a charming cottage, a guest apartment, and the poetic “Owl’s Nest.” Inside the main home, you’ll find an entertainer’s dream a grand great room with a gas fireplace opens to sweeping bay views, accompanied by a chef’s kitchen outfitted with Wolf and Sub-Zero appliances, dramatic built-in wine storage, and a stunning Forno Bravo pizza oven. Custom stone and wood finishes, soaring arches, and elegant moldings underscore the craftsman-level quality throughout. The primary suite is a tranquil retreat with a cozy fireplace and steam shower, while additional guest suites offer comfort and privacy. Outdoors, the property shines with a tiki hut, resort-style freeform heated pool, and a fully equipped outdoor kitchen and living area that beckons relaxing evenings by the bay. Water access here is sublime with approximately 100 feet of protected water frontage, a covered boat lift, expansive dock with charging, all positioned to enjoy daily visits from dolphins and manatees against the backdrop of breathtaking sunsets. Located minutes from upscale shopping, fine dining, and Gulf beaches, this unparalleled compound is not just a home it’s a peaceful, private paradise designed for lavish entertaining, family memories, and luxurious coastal living.

 



10216 46TH AVENUE W

Inquire about this home

Berkshire Hathaway HomeServices
Florida Realty

3192 Fruitville Rd, Sarasota, FL 34237


Explore: Bay Beach


Similar Listings

More Single Family Residence for sale near Bay Beach in BRADENTON Florida


$6.9M 5210 INSPIRATION TER BRADENTON FL 34210

$6.5M 10216 46TH AVE W BRADENTON FL 34210

$4.9M 5708 INSPIRATION TER BRADENTON FL 34210

Listing Broker: COMPASS FLORIDA LLC
Last Changed: Tuesday 31st of March 2026 10:09:09 PM

All listing information is deemed reliable but not guaranteed and should be independently verified through personal inspection by appropriate professionals. Listings displayed on this website may be subject to prior sale or removal from sale; vailability of any listing should always be independently verified. Listing information is provided for consumer personal, non-commercial use, solely to identify potential properties for potential purchase; all other use is strictly prohibited and may violate relevant federal and state law. Copyright 2021 , Stellar MLS.