$994,900
  • 3 beds
  • 2 baths
  • 2158 sqft
  • 0.15 acres
  • 2022 year built

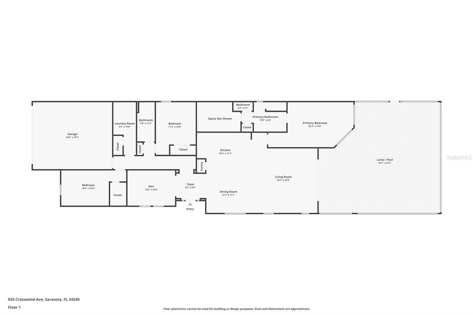
Under contract-accepting backup offers. Set along the tranquil shores of Lake Ibis, this exceptional lakefront residence showcases spectacular, long, uninterrupted water views and breathtaking sunset vistas that define true Florida living. Built in 2022 by Homes by Towne, the Skiff floor plan offers thoughtful design, quality construction, and an enviable waterfront setting. Spanning 2,158 square feet, the home features three bedrooms, two full baths, a dedicated office/den, and an open-concept layout designed to maximize natural light while framing the stunning lake views from multiple living areas. The kitchen is both stylish and functional, featuring quartz countertops, custom cabinetry with soft-close drawers and pull-out shelving, under-cabinet lighting, stylish backsplash, and a layout ideal for everyday living or elaborate entertaining. The great room opens seamlessly to an extended lanai with a full-view screen enclosure, preserving clear sightlines across the water and front-row views of vibrant sunsets. The outdoor living area is a true highlight, offering a pool, separate standalone spa, generous covered seating area, an ideal setting for morning coffee overlooking the lake or evening gatherings as the sun sets aglow with color over the water. The owner’s suite is positioned to capture serene water views and glowing sunsets, creating a peaceful retreat complemented by a spa-inspired bath with dual quartz vanities, and upgraded finishes. Two additional bedrooms and full bath on the other side of the home provide private flexibility for guests or family, while a light-filled office offers a quiet space for work or hobbies. Additional features include a large laundry room and a two-car garage with epoxy flooring and storage. Residents of LakeHouse Cove enjoy resort-style amenities, including a pool and spa, state of the art fitness center, clubhouse with catering kitchen, boathouse with kayak launches, pickleball courts, fire pits, dog parks, and a full calendar of social activities. Be as social as you want within this community.  Conveniently located just minutes from Waterside Place, Lakewood Ranch Main Street, University Town Center, and downtown Sarasota, this exceptional residence offers effortless access to world-renowned beaches, celebrated cultural attractions, and Sarasota-Bradenton International Airport. A short journey opens the door to Florida’s iconic theme parks, adding yet another dimension to the lifestyle. This is a rare opportunity to enjoy spectacular lake views, unforgettable sunset vistas, and the peace of mind that comes with newer construction, all within one of Lakewood Ranch’s most sought-after communities.

 



925 CROSSWIND AVENUE

Inquire about this home

Berkshire Hathaway HomeServices
Florida Realty

3192 Fruitville Rd, Sarasota, FL 34237


Explore: Lakehouse Cove/waterside Ph 4


Similar Listings

More Single Family Residence for sale near Lakehouse Cove/waterside Ph 4 in SARASOTA Florida


$1.3M 1901 JOSHUA DR SARASOTA FL 34240

$1.3M 7953 MAINSAIL LN SARASOTA FL 34240

$1.2M 4803 ANCIENT MARBLE DR SARASOTA FL 34240

Listing Broker: COMPASS FLORIDA LLC
Last Changed: Tuesday 24th of February 2026 05:16:13 PM

All listing information is deemed reliable but not guaranteed and should be independently verified through personal inspection by appropriate professionals. Listings displayed on this website may be subject to prior sale or removal from sale; vailability of any listing should always be independently verified. Listing information is provided for consumer personal, non-commercial use, solely to identify potential properties for potential purchase; all other use is strictly prohibited and may violate relevant federal and state law. Copyright 2021 , Stellar MLS.