$895,000
  • 4 beds
  • 3 baths
  • 3221 sqft
  • 0.39 acres
  • 1994 year built

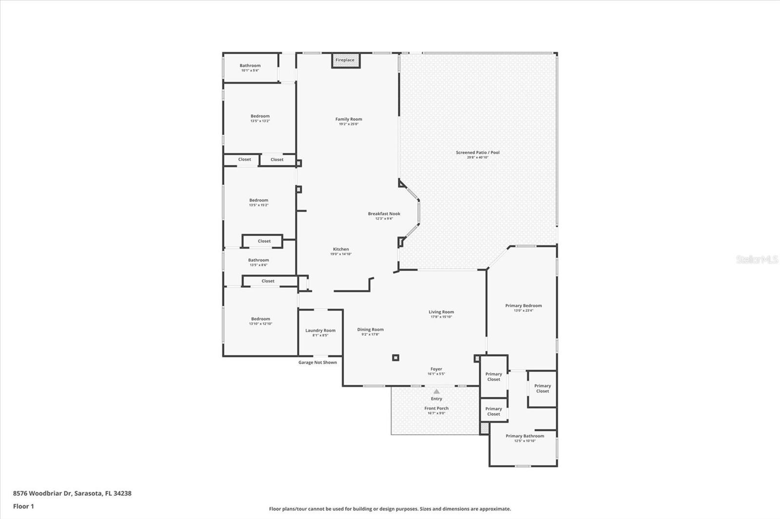
Under contract-accepting backup offers. Custom-Built Lee Wetherington Executive Home in Deer Creek 4 Bedrooms | 3 Baths | 3,221 SF | 3-Car Garage | .39 Acres | Private Pool Custom-built Lee Wetherington executive residence located in the highly sought-after, guard-gated community of Deer Creek. Set on a quiet .39-acre lot backing to wooded preserve views, this home offers timeless architectural styling, quality craftsmanship, and a wide split floor plan designed for both privacy and functionality. The interior features a grand open entry with soaring ceilings, custom trim work, and abundant natural light throughout. Generous living and entertaining spaces include an open family room with fireplace and multiple sliding glass doors providing seamless access to the screened pool and outdoor dining areas. The thoughtfully designed floor plan includes four bedrooms and three baths, with a truly private full mother-in-law or guest suite. The owners’ retreat offers a spacious layout with tranquil views of the surrounding natural landscape. The kitchen opens to the family room, creating a central gathering space ideal for everyday living and entertaining. Additional features include a caged, refinished Pebble Tec pool, flat tile roof (2013), three-zone HVAC system with all units replaced within the last three years, well water for irrigation, updated mechanicals (age list available), refreshed landscaping, and a coveted three-car garage. Deer Creek is known for its mature landscaping, sidewalks, streetlights, manned guard gate, and strong sense of community. Conveniently located near the Legacy Trail, shopping, dining, and Sarasota’s renowned Gulf beaches. A well-constructed home offering an excellent floor plan and competitive price per square foot, ready for personal updates. A rare opportunity to own a quality-built residence in one of Sarasota’s most established gated communities.

 



8576 WOODBRIAR DRIVE

Inquire about this home

Berkshire Hathaway HomeServices
Florida Realty

3192 Fruitville Rd, Sarasota, FL 34237


Explore: Deer Creek


Similar Listings

More Single Family Residence for sale near Deer Creek in SARASOTA Florida


$1.2M 8288 DEERBROOK CIR SARASOTA FL 34238

$1.2M 8965 WILDLIFE LOOP SARASOTA FL 34238

$1.1M 8733 AMARETTO AVE SARASOTA FL 34238

Listing Broker: SHOWTIME REALTY
Last Changed: Wednesday 31st of December 2025 08:28:10 PM

All listing information is deemed reliable but not guaranteed and should be independently verified through personal inspection by appropriate professionals. Listings displayed on this website may be subject to prior sale or removal from sale; vailability of any listing should always be independently verified. Listing information is provided for consumer personal, non-commercial use, solely to identify potential properties for potential purchase; all other use is strictly prohibited and may violate relevant federal and state law. Copyright 2021 , Stellar MLS.