$399,000
  • 0 acre lot for sale

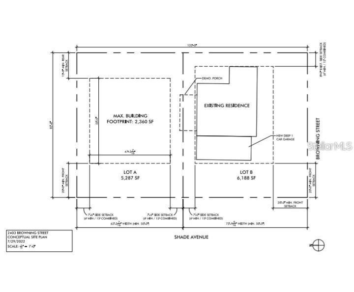
Fully Engineered Plans that are ready to be submitted for permitting. Full set of plans can be viewed in person or digitally during due diligence. Photos are of proposed home for this vacant lot.

 



849 SHADE AVENUE

Inquire about this home

Berkshire Hathaway HomeServices
Florida Realty

3192 Fruitville Rd, Sarasota, FL 34237


Explore: Hudson Park


Listing Broker: ALIGN RIGHT REALTY SRQ OPULENCE
Last Changed: Wednesday 05th of November 2025 12:34:08 PM

All listing information is deemed reliable but not guaranteed and should be independently verified through personal inspection by appropriate professionals. Listings displayed on this website may be subject to prior sale or removal from sale; vailability of any listing should always be independently verified. Listing information is provided for consumer personal, non-commercial use, solely to identify potential properties for potential purchase; all other use is strictly prohibited and may violate relevant federal and state law. Copyright 2021 , Stellar MLS.