$275,000
  • 2 beds
  • 1 baths
  • 1061 sqft
  • 0.24 acres
  • 2024 year built

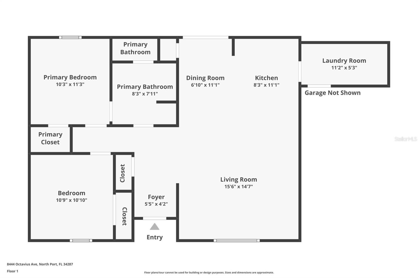
Home of your Dreams! NOT FLOOD ZONE! NEW CONSTRUCTION 2024!LOW TAXES! NO HOA ! NO CDD! Minutes away from Warm Mineral Springs and Wellen Park! Very Private !This beautiful 2 bedroom, 1 bathroom, 1 car garage move-in ready.This home has great curb appeal and may be just what you've been looking for. This home has a wonderfully open floor plan with the great room open to the kitchen with stainless steel appliances . Tile throughout the entire home. Indoor laundry room with a counter and utility sink . With privacy in mind, the master suite is separated from the other two bedrooms. The home sits in a quiet neighborhood located in WARM MINERAL SPRINGS, one of the most popular locations to live. NOT IN A FLOOD ZONE. No deed restrictions or HOA fees. Excellent location, peaceful neighborhood, minutes from I-75 & Tamiami Trail! The perfect place to call home with a central location to shopping, dining, golfing, entertainment, medical facilities, award winning beaches, and the Spring Training home of the Tampa Bay Rays. You don’t want to miss the opportunity to see this incredible home in person. All information deemed reliable, but not guaranteed; buyer to confirm all.

 



8444 OCTAVIUS AVENUE

Inquire about this home

Berkshire Hathaway HomeServices
Florida Realty

3192 Fruitville Rd, Sarasota, FL 34237


Explore: Port Charlotte Sub 36


Similar Listings

More Single Family Residence for sale near Port Charlotte Sub 36 in NORTH PORT Florida


$355.6K 2663 AVERLAND LOOP NORTH PORT FL 34287

$355K 4416 WORCESTER AVE NORTH PORT FL 34287

$354.1K 8409 SKILE RD NORTH PORT FL 34287

Listing Broker: RE/MAX PALM REALTY OF VENICE
Last Changed: Saturday 22nd of November 2025 03:43:09 PM

All listing information is deemed reliable but not guaranteed and should be independently verified through personal inspection by appropriate professionals. Listings displayed on this website may be subject to prior sale or removal from sale; vailability of any listing should always be independently verified. Listing information is provided for consumer personal, non-commercial use, solely to identify potential properties for potential purchase; all other use is strictly prohibited and may violate relevant federal and state law. Copyright 2021 , Stellar MLS.