$425,000
  • 3 beds
  • 2 baths
  • 1594 sqft
  • 0.29 acres
  • 1985 year built

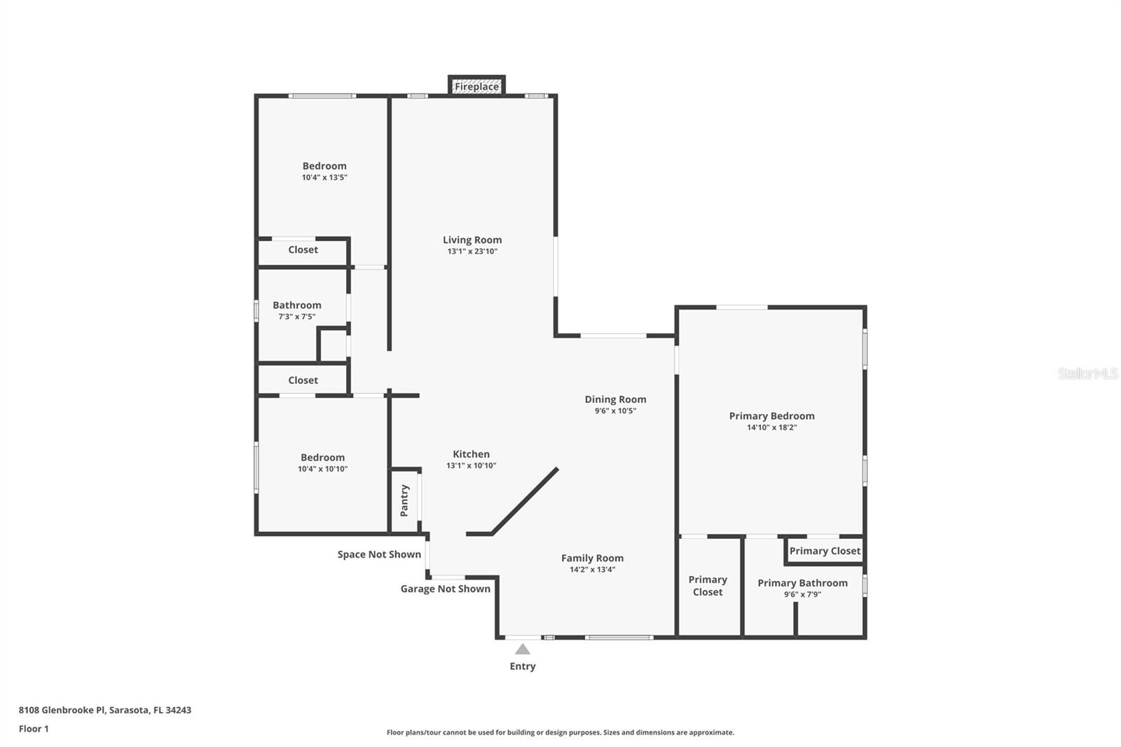
One or more photo(s) has been virtually staged. Welcome to Glenbrooke! Nestled on over a quarter-acre cul-de-sac lot, this charming 3-bedroom, 2-bathroom home offers the perfect blend of comfort, functionality, and Florida lifestyle living in a quaint, centrally located Sarasota community. A desirable split-bedroom floor plan provides privacy and flexibility for families and guests alike. Upon entry, you’re greeted by formal living and dining rooms just off the foyer, ideal for entertaining. The gathering room, located at the rear of the home, features a propane gas fireplace and sliding glass doors that open to the lanai, creating a warm and inviting space. The remodeled kitchen is a standout, showcasing new cabinetry with gold hardware, quartz countertops, pendant lighting over the breakfast bar, canned lighting, a skylight, and a closet pantry with French doors. Wood beam accents add character and charm, while new appliances (2023) complete the space. The primary suite is privately situated in the back right corner of the home and offers sliding glass doors to the lanai. The remodeled en-suite bathroom features a glass walk-in shower, white vanity cabinetry with drawers, and a granite countertop. Two secondary bedrooms are located on the opposite side of the home and share a bathroom with a tub/shower combination. Luxury vinyl flooring runs throughout the home, with carpet in the two secondary bedrooms. Step outside to enjoy a covered lanai and a large, fully fenced backyard, providing a safe and versatile space for kids, pets, and outdoor gatherings. The yard includes a brand-new swing set, perfect for play and family fun. Additional Features & Upgrades Include: Roof replaced in 2017 (including soffits & gutters) HVAC replaced in 2018 Whole-house generator Electric car charging station Hurricane shutters Central vacuum system Storage shed included Pull-down attic ladder in garage for additional storage Centrally located in Sarasota, this home offers easy access to excellent schools, shopping, dining, and everyday conveniences. Enjoy the best of coastal living with beautiful beaches and recreational activities just minutes away, and an exceptional location only 4 miles from University Town Center. Don’t miss this opportunity to make this wonderful home your own—schedule your private showing today!

 



8108 GLENBROOKE PLACE

Inquire about this home

Berkshire Hathaway HomeServices
Florida Realty

3192 Fruitville Rd, Sarasota, FL 34237


Explore: Glenbrooke


Similar Listings

More Single Family Residence for sale near Glenbrooke in SARASOTA Florida


$537K 3419 74TH AVENUE CIR E SARASOTA FL 34243

$535K 5827 BEAURIVAGE AVE SARASOTA FL 34243

$525K 3822 IRONWOOD CT SARASOTA FL 34243

Listing Broker: RE/MAX REALTY UNLIMITED
Last Changed: Wednesday 07th of January 2026 11:48:26 AM

All listing information is deemed reliable but not guaranteed and should be independently verified through personal inspection by appropriate professionals. Listings displayed on this website may be subject to prior sale or removal from sale; vailability of any listing should always be independently verified. Listing information is provided for consumer personal, non-commercial use, solely to identify potential properties for potential purchase; all other use is strictly prohibited and may violate relevant federal and state law. Copyright 2021 , Stellar MLS.