$239,500
  • 3 beds
  • 2 baths
  • 1278 sqft
  • 0.23 acres
  • 1991 year built

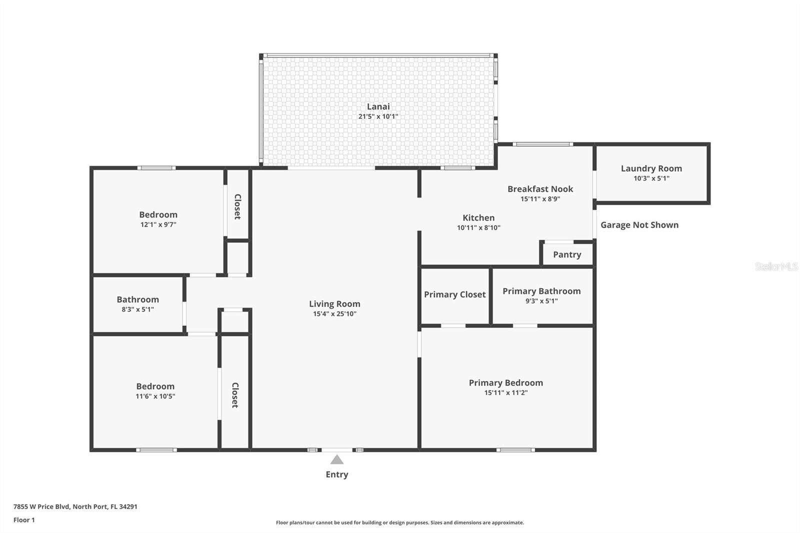
Welcome to 7855 W Price Blvd, North Port, FL 34291 — a beautifully remodeled 3-bedroom, 2-bath, 2-car garage home located in one of North Port’s quiet and desirable residential areas. This move-in-ready property offers peace of mind with major updates already completed, including a new roof and A/C system in 2020, a new hot water heater in 2022, and a hurricane-rated garage door installed in 2023 — providing both comfort and long-term value. Inside, the home features luxury plank vinyl flooring throughout, creating a cohesive, modern look while offering durability and easy maintenance. The thoughtfully designed split-bedroom floor plan provides ideal separation between the primary suite and guest bedrooms, perfect for privacy, family living, or hosting visitors. The kitchen is enhanced with a reverse osmosis system, offering purified drinking water right at the sink — a practical upgrade you’ll appreciate every day. Both bathrooms have been tastefully updated, complementing the home’s clean, contemporary feel. Natural light flows through the living spaces, making the home feel bright and welcoming. The layout is functional yet comfortable, offering excellent use of space for everyday living or seasonal enjoyment. Situated on a peaceful street with nearby access to shopping, dining, schools, parks, and major roadways, this home delivers the perfect blend of tranquility and convenience. With its extensive upgrades, modern finishes, and prime North Port location, this home is truly move-in ready and waiting for its next owner. Schedule your private showing today and experience everything this beautifully updated property has to offer.

 



7855 W PRICE BOULEVARD

Inquire about this home

Berkshire Hathaway HomeServices
Florida Realty

3192 Fruitville Rd, Sarasota, FL 34237


Explore: Port Charlotte Sub 36


Similar Listings

More Single Family Residence for sale near Port Charlotte Sub 36 in NORTH PORT Florida


$309.9K 2948 CORDOVA TER NORTH PORT FL 34291

$309K 5049 BIRDSONG ST NORTH PORT FL 34291

$309K 4340 HEYWARD ST NORTH PORT FL 34291

Listing Broker: GRANT TEAM REAL ESTATE, LLC
Last Changed: Thursday 29th of January 2026 11:49:39 AM

All listing information is deemed reliable but not guaranteed and should be independently verified through personal inspection by appropriate professionals. Listings displayed on this website may be subject to prior sale or removal from sale; vailability of any listing should always be independently verified. Listing information is provided for consumer personal, non-commercial use, solely to identify potential properties for potential purchase; all other use is strictly prohibited and may violate relevant federal and state law. Copyright 2021 , Stellar MLS.