$1,459,900
  • 4 beds
  • 3 baths
  • 2510 sqft
  • 5.03 acres
  • 1993 year built

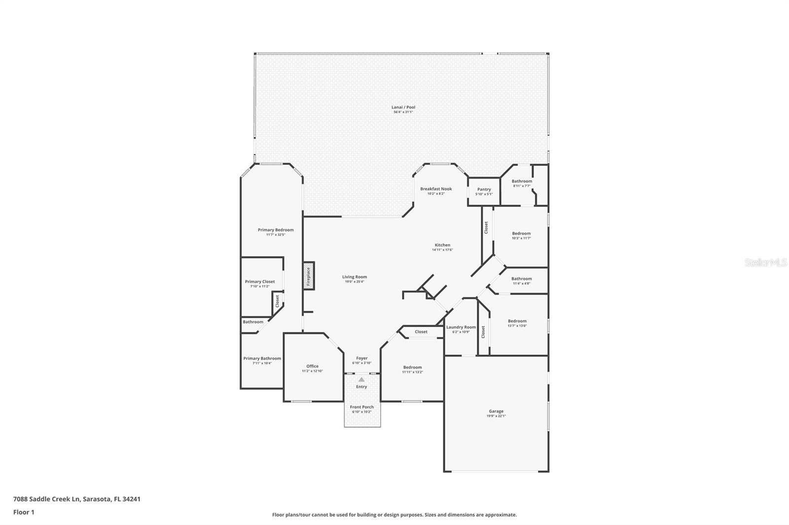
Country tranquility meets Sarasota convenience on this PRIVATE 5-ACRE estate tucked away at the end of a QUIET CUL-DE-SAC in the POPULAR GATED EQUESTRIAN COMMUNITY of Saddle Creek! This 4 BED + DEN/OFFICE, 3 BATH home with 2,510 square feet underwent a large renovation by Trinity Construction in 2018 (NEW KITCHEN, NEW FLOORING, NEW BATHROOMS, NEW PAINT, NEW LIGHTING & MORE). Inside, WOOD-LOOK PLANK TILE flows throughout the entire home, complemented by a WOOD BURNING FIREPLACE, 7 SLIDING GLASS DOORS OUT TO YOUR LANAI, and a TRAY CEILING in the spacious primary suite. The open farmhouse kitchen is both stylish and functional, featuring QUARTZ countertops, white RAISED PANEL CABINETRY, STAINLESS STEEL APPLIANCES, a WALK-IN PANTRY, and a generous 6 PERSON BREAKFAST BAR that creates a natural gathering space for family and guests. The primary suite serves as a relaxing retreat with a CUSTOM WALK-IN CLOSET and a SPA-INSPIRED BATHROOM showcasing DUAL VANITIES, a SOAKING TUB, a GLASS ENCLOSED SHOWER with beautiful tile work, and multiple shampoo niches for added convenience. Step outside to enjoy true Florida living with a HEATED POOL & SPA surrounded by a screened lanai, offering multiple areas for entertaining, dining, or simply relaxing while overlooking your private acreage. For those seeking a true equestrian or hobby farm lifestyle, the property is GATED, FULLY FENCED & CROSS-FENCED AND READY FOR HORSES, ANIMALS and TOYS! A well-equipped barn includes: TWO ~16x13 HORSE STALLS W/ WATER (room for 2 more), a 35x11 breezeway, THREE AIR CONDITIONED ROOMS (currently being used as a tack room/gym, music room & storage/workshop), and covered storage for lawn equipment and more. The grounds also feature THREE SEPARATELY FENCED/GATED PASTURES, STOCKED POND, 15x9 CHICKEN COOP, FRUIT TREES, REVERSE OSMOSIS SYSTEM, and even an RV HOOKUP, providing endless opportunities for recreation and self-sufficiency. The MATURE TREES create an unforgettable ambiance as you watch the SUNSETS outside your front door! The home was RE-PIPED in 2020 and the A/C was replaced in 2021! Saddle Creek is known for its horse-friendly environment and over 25 MILES OF RIDING TRAILS winding throughout the approximately 1,000-acre community of just 161 homes. Despite the PEACEFUL RURAL ATMOSPHERE, you are only 7 miles to Publix, 5 miles from I-75, 13 miles from Siesta Key Beach, about 15 miles from Downtown Sarasota and the UTC Mall, offering easy access to world-class beaches, dining, shopping, and cultural attractions. Set within the A-RATED RIVERVIEW HIGH, SARASOTA MIDDLE & LAKEVIEW ELEMENTARY SCHOOL DISTRICT! If you’ve been searching for the perfect balance of privacy, acreage, equestrian lifestyle, and proximity to Sarasota’s best amenities, this remarkable Saddle Creek property offers country living at its finest!

 



7088 SADDLE CREEK LANE

Inquire about this home

Berkshire Hathaway HomeServices
Florida Realty

3192 Fruitville Rd, Sarasota, FL 34237


Explore: Saddle Creek


Similar Listings

More Single Family Residence for sale near Saddle Creek in SARASOTA Florida


$1.9M 7858 SADDLE CREEK TRL SARASOTA FL 34241

$1.8M 6609 PALADIN CT SARASOTA FL 34241

$1.7M 5645 CHURCHILL DOWNS RD SARASOTA FL 34241

Listing Broker: NEXTHOME EXCELLENCE
Last Changed: Saturday 18th of April 2026 01:51:09 PM

All listing information is deemed reliable but not guaranteed and should be independently verified through personal inspection by appropriate professionals. Listings displayed on this website may be subject to prior sale or removal from sale; vailability of any listing should always be independently verified. Listing information is provided for consumer personal, non-commercial use, solely to identify potential properties for potential purchase; all other use is strictly prohibited and may violate relevant federal and state law. Copyright 2021 , Stellar MLS.