$4,050,000
  • Cleared,CoastalConstruction Control Line,Landscaped,Private,Street Dead-End Lot Features
  • 1.02 acre lot for sale

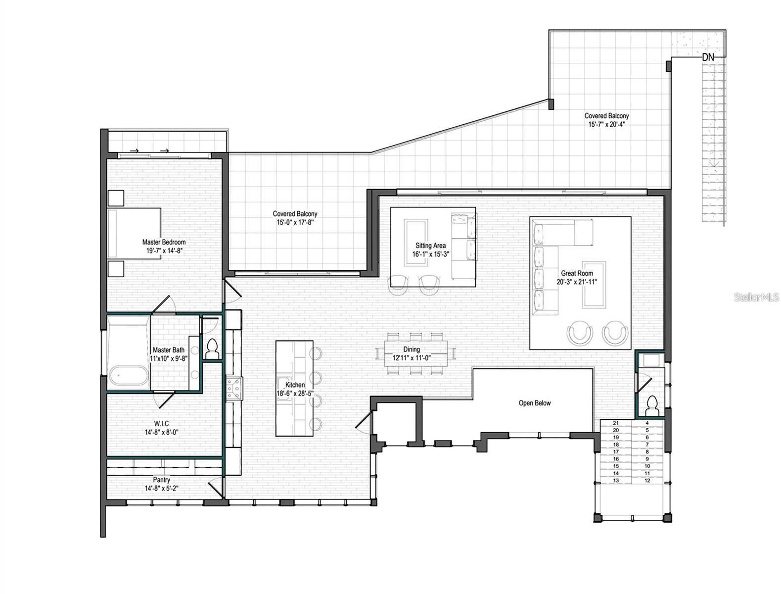
One or more photo(s) has been virtually staged. Live beyond the horizon at Cornwell on the Gulf—one of the final, truly rare opportunities to claim over an acre (1.02 Acres) of direct Gulf-front land on Venice’s iconic coastline. Boasting approximately 105 feet of private beachfront frontage, this extraordinary parcel offers the freedom to create a private luxury compound that captures the essence of coastal living: architectural artistry, seamless indoor-outdoor spaces, and an intimate connection to the sea that fewer and fewer properties can ever replicate. The land itself is remarkable—generously sized, quietly positioned, and zoned for residential single-family development under the current local zoning classification. The expansive dimensions support a dream-worthy layout: a grand residence with panoramic water views, detached guest quarters, infinity-edge pool overlooking the Gulf, outdoor kitchens, fire features, rooftop terraces, and private pathways leading directly to the sand. With over 100 feet of pristine beachfront and a buildable acreage well suited for custom single-family living, this is a blank canvas where luxury, privacy, and nature exist in perfect harmony. For buyers seeking both vision and momentum, the property includes architecturally stunning, fully designed plans with active approvals and permits already in place—a significant advantage in today’s environment of rising construction costs and extended review timelines. These plans thoughtfully blend modern elegance with coastal simplicity, maximizing view corridors, natural light, and functional livability. They streamline the build process while still allowing meaningful customization, giving you the best of both worlds: an accelerated timeline toward breaking ground, and the ability to imprint your personal aesthetic. Construction would be handled by Beechwood Builders, a respected local custom-home builder known for quality craftsmanship, attention to detail, and delivering luxury residences that stand the test of time. Utilities to the site are ready to go: the lot has access to city water and sewer and is pre-plumbed for modern amenities; electric and other utility hookups are available and mapped in the approved plans. That reduces the complexity and added cost sometimes associated with beach-front builds, allowing a smoother, more predictable path to your finished residence by the sea. Located just moments from historic downtown Venice, Sharky’s, and the South Jetty, the property offers a rare balance of serenity and accessibility. Enjoy boutique shopping, waterfront dining, cultural events, and a charming coastal lifestyle — all from a private sanctuary that feels worlds away. Cornwell on the Gulf isn’t just a piece of land — it’s a once-in-a-generation opportunity to create something enduring, exquisite, and deeply personal. Whether you build a visionary estate from the ground up or bring the existing plans to life with ease with Beechwood Builders at the helm, this property invites you to craft a lifestyle defined by beauty, privacy, and the infinite luxury of the waterfront. Seller is open to holding the note, in first position, for respectful and acceptable terms.

 



639 CORNWELL ON THE GULF

Inquire about this home

Berkshire Hathaway HomeServices
Florida Realty

3192 Fruitville Rd, Sarasota, FL 34237


Explore:


Listing Broker: COLDWELL BANKER REALTY
Last Changed: Monday 15th of December 2025 05:42:11 PM

All listing information is deemed reliable but not guaranteed and should be independently verified through personal inspection by appropriate professionals. Listings displayed on this website may be subject to prior sale or removal from sale; vailability of any listing should always be independently verified. Listing information is provided for consumer personal, non-commercial use, solely to identify potential properties for potential purchase; all other use is strictly prohibited and may violate relevant federal and state law. Copyright 2021 , Stellar MLS.