$799,999
  • 3 beds
  • 3 baths
  • 2420 sqft
  • 0.17 acres
  • 2020 year built

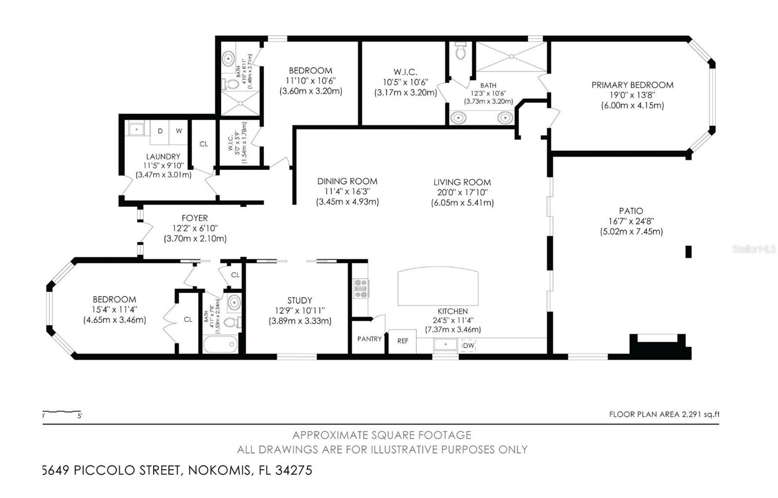
Under contract-accepting backup offers. Experience elevated coastal living in this beautifully upgraded Taylor Morrison Lazio pool home, featuring 3 bedrooms, 3 bathrooms, and a versatile den/flex room. From the moment you enter, a grand foyer with an elegant tray ceiling sets a refined tone, opening to a light-filled, open-concept living space designed for effortless entertaining and relaxed luxury. The gourmet kitchen is a true showpiece, anchored by an oversized quartz island and appointed with a gas cooktop, wall oven with convection microwave, reverse osmosis water purifying system, pull-out cabinet shelving, and a pantry with upgraded cabinetry. Two triple sliding glass doors lead you to an exceptional outdoor retreat where a panoramic screened lanai frames tranquil preserve views. Finished with travertine tile, this space features a stunning rectangular salt water pool with water features, heated spa, sun shelf and color changing pool lighting. A gas stacked-stone fireplace, expansive covered lounge area, and REMOTE-CONTROLLED HURRICANE SCREENS create a resort-style setting for year-round enjoyment. The primary suite is a private sanctuary, offering triple windows overlooking the preserve, plush carpeting, and a spa-inspired en-suite bath with a large walk-in tile shower, dual vanities, and a spacious custom-designed closet. Guests are equally well accommodated with a private en-suite bedroom, along with an additional bedroom and bath that can be closed off with a pocket door to create a secluded guest retreat. A den with pocket doors provides the perfect space for a home office or flex room. Additional enhancements include HURRICANE IMPACT WINDOWS at the front, HURRICANE ACCORDION SHUTTERS, Plantation shutters, Hunter ceiling fans, and a well-appointed laundry room with sink and ample cabinetry. The 2+ tandem garage offers exceptional versatility, complete with a separate air-conditioned room ideal for a workshop, studio, or additional storage. All of this, just a short stroll to the community dog park, in one of the area’s most desirable lifestyle communities. Bellacina by Casey Key is one of the CLOSEST gated communities to a FLORIDA GULF BEACH, Nokomis Beach is a mere 2.5 MILES AWAY (10 MIN. GOLFCART RIDE) making it a coastal paradise! Venice Island is within 5 miles, and it's easy to explore the world-famous Siesta Key in just 20 minutes or head to downtown Sarasota in 30 minutes. The proximity to SRQ airport, only 35 minutes, adds a level of convenience for avid travelers. The community itself is a haven of luxury living, offering a resort-style swimming pool with cabanas, whirlpool spa, a 24-hour fitness center, fire pits, and a club house with a chef's kitchen. Enjoy recreational activities with 4 pickleball courts, 1 Har Tru tennis court, bocce ball courts, and a playground. Two dog parks and PRIVATE community access to the renowned "Sarasota to Venice" LEGACY TRAIL for the outdoor enthusiasts. With an on-site events coordinator, the community provides a full calendar of activities, including fitness classes, bunco nights, organized card games, live music, food trucks, and even cigar nights around the fire pit. Don't miss a remarkable property in a prime location!

 



5649 PICCOLO STREET

Inquire about this home

Berkshire Hathaway HomeServices
Florida Realty

3192 Fruitville Rd, Sarasota, FL 34237


Explore: Bellacina By Casey Key Ph 3


Similar Listings

More Single Family Residence for sale near Bellacina By Casey Key Ph 3 in NOKOMIS Florida


$1M 225 PESARO DR NORTH VENICE FL 34275

$1000K 302 BAYVIEW PKWY NOKOMIS FL 34275

$1000K 328 BOCELLI DR NORTH VENICE FL 34275

Listing Broker: KELLER WILLIAMS ISLAND LIFE REAL ESTATE
Last Changed: Friday 27th of March 2026 10:07:08 AM

All listing information is deemed reliable but not guaranteed and should be independently verified through personal inspection by appropriate professionals. Listings displayed on this website may be subject to prior sale or removal from sale; vailability of any listing should always be independently verified. Listing information is provided for consumer personal, non-commercial use, solely to identify potential properties for potential purchase; all other use is strictly prohibited and may violate relevant federal and state law. Copyright 2021 , Stellar MLS.