$335,000
  • 3 beds
  • 2 baths
  • 1114 sqft
  • 0.34 acres
  • 1985 year built

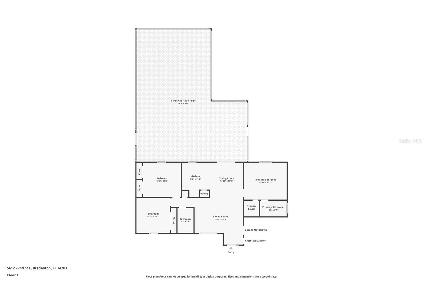
Discover the irresistible charm of this inviting home in a quiet community. It's a perfect match for first-time buyers, seasonal snowbirds in search of a getaway, or astute investors looking for a premium property. The inviting living room is the heart of the home, seamlessly connecting to the dining area and kitchen, creating an exceptional space for entertaining and creating lasting memories with loved ones. This thoughtfully designed split floor plan ensures privacy for you and your guests. On one side, you’ll find a spacious primary suite complete with an ensuite bath featuring a luxurious walk-in shower. On the opposite side, two generously sized bedrooms await, along with a conveniently located guest bathroom that includes a tub and shower combo—ideal for accommodating friends and family. Step outside to your personal oasis on the lanai, where you can relish stunning views of the beautiful pool and serene pond. The sunsets are a must-se! The large, fenced backyard, enhanced by mature landscaping, provides the ultimate space for soaking up the glorious Florida sunshine. You'll have have the added peace of mind with a brand new A/C unit (2025). Conveniently located near schools, dining, and shopping. This is your chance to own the dream home you’ve always envisioned! Don’t let this incredible opportunity pass you by—schedule your showing today and embark on the Florida lifestyle you truly deserve!

 



5612 22ND STREET E

Inquire about this home

Berkshire Hathaway HomeServices
Florida Realty

3192 Fruitville Rd, Sarasota, FL 34237


Explore: Meadow Lake


Similar Listings

More Single Family Residence for sale near Meadow Lake in BRADENTON Florida


$435K 5616 GARDEN LAKES MAJESTIC BRADENTON FL 34203

$430K 3907 57TH PL E BRADENTON FL 34203

$430K 5542 SPANISH MOSS CV BRADENTON FL 34203

Listing Broker: HOUSE MATCH
Last Changed: Monday 23rd of February 2026 10:47:09 PM

All listing information is deemed reliable but not guaranteed and should be independently verified through personal inspection by appropriate professionals. Listings displayed on this website may be subject to prior sale or removal from sale; vailability of any listing should always be independently verified. Listing information is provided for consumer personal, non-commercial use, solely to identify potential properties for potential purchase; all other use is strictly prohibited and may violate relevant federal and state law. Copyright 2021 , Stellar MLS.