$600,000
  • beds
  • baths
  • 1460 sqft
  • 12.93 acres
  • 2006 year built

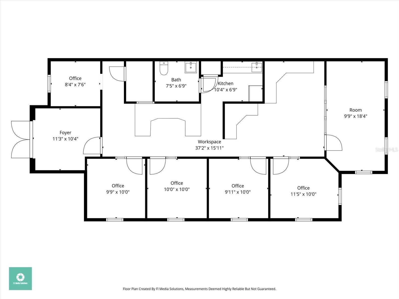
Positioned within Sawyer Oaks Plaza, this 1,460 SF end-unit office condominium features a storefront entrance into a waiting room with a reception office, 4 private offices, a large conference room with a peaceful view of the pond and fountain, 3 open workspaces, private restroom, and a kitchen/break room. This property presents a stabilized investment opportunity in one of Sarasota’s established office corridors. The unit is well maintained and professionally occupied, offering immediate in-place income with minimal management. As an end unit, the suite benefits from enhanced natural light and additional privacy—features that support tenant retention and long-term leasing stability. Sawyer Oaks Plaza is a professionally maintained office community with plenty of parking for staff and clients, and convenient access to Bee Ridge Road, Clark Road (SR 72), and I-75, serving a broad client base across central Sarasota. Sawyer Oaks Plaza in Sarasota, Florida is positioned just off Sawyer Road and Clark Road (SR 72). This central Sarasota location offers convenient east–west connectivity via Clark Road, with direct access to I-75 approximately 10 minutes to the east and US-41/Tamiami Trail to the west. Sawyer Oaks Plaza is situated in a well-established commercial corridor surrounded by professional offices, medical practices, light industrial users, and neighborhood service businesses. The area benefits from strong residential density in the surrounding communities, including established neighborhoods and newer developments throughout the Bee Ridge and Clark Road submarkets. The property’s central position provides efficient access to Downtown Sarasota, Siesta Key, Palmer Ranch, and Lakewood Ranch, making it well positioned to serve clients throughout the greater Sarasota market. The location offers convenient proximity to retail centers, restaurants, and daily service amenities along Clark Road, while maintaining a professional office setting removed from heavy highway congestion.

 



5605 MARQUESAS CIRCLE

Inquire about this home

Berkshire Hathaway HomeServices
Florida Realty

3192 Fruitville Rd, Sarasota, FL 34237


Explore: Sawyer Oaks Professional Park Ph 01


Listing Broker: LOYD ROBBINS & CO. LLC
Last Changed: Saturday 28th of February 2026 06:02:19 AM

All listing information is deemed reliable but not guaranteed and should be independently verified through personal inspection by appropriate professionals. Listings displayed on this website may be subject to prior sale or removal from sale; vailability of any listing should always be independently verified. Listing information is provided for consumer personal, non-commercial use, solely to identify potential properties for potential purchase; all other use is strictly prohibited and may violate relevant federal and state law. Copyright 2021 , Stellar MLS.