$369,000
  • 3 beds
  • 2 baths
  • 1838 sqft
  • 0.24 acres
  • 1997 year built

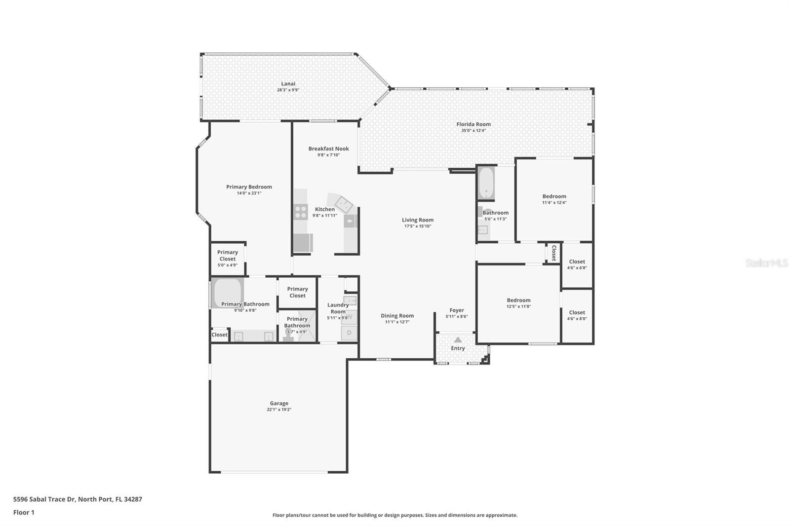
One or more photo(s) has been virtually staged. Welcome to your slice of paradise in the highly desirable, well established, GATED Sable Trace community with LOW HOA's and NO CDD to pay! This Immaculately maintained, 3-bedroom, 2-bath home offers a picturesque lakefront view and the Ultimate in Florida lifestyle living. Step inside to discover a bright and airy open-concept floorplan with spacious living areas, designed for comfort and flow. This CUSTOM BUILT residence boasts updates and upgrades including: QUARTZ KITCHEN COUNTERTOPS, WHOLE HOUSE AND FLORIDA ROOM HURRICANE SHUTTERS, 2020 ROOF, Dual tube skylights to maximize natural light, a Generously sized ENCLOSED FLORIDA ROOM and an additional SCREENED LANAI, perfect for enjoying peaceful mornings or hosting sunset gatherings with tranquil water views as your backdrop. This home is move-in ready and offers serenity, privacy, and curb appeal. The community features well-maintained sidewalks throughout, ideal for walking, jogging, or simply soaking in the scenery in this quiet, secure neighborhood. Location is everything—and this one has it all! You’re just moments from US-41, I-75, the vibrant Coco Plum shopping district, and a short drive to world-class Gulf beaches. Sports enthusiasts will love being close to the Cool Today Park, spring training home of the Atlanta Braves. Whether you’re searching for your primary residence, a seasonal retreat, or a smart investment, this home checks all the boxes. Call today to schedule your private tour!

 



5596 SABAL TRACE DRIVE

Inquire about this home

Berkshire Hathaway HomeServices
Florida Realty

3192 Fruitville Rd, Sarasota, FL 34237


Explore: Sabal Trace Unit 1


Similar Listings

More Single Family Residence for sale near Sabal Trace Unit 1 in NORTH PORT Florida


$478.8K 5061 RICHMOND TER NORTH PORT FL 34287

$475K LOT 18 BLK 284 WOOLEY AVE NORTH PORT FL 34287

$475K 5028 GREENWAY CT NORTH PORT FL 34287

Listing Broker: COLDWELL BANKER SUNSTAR REALTY
Last Changed: Tuesday 14th of October 2025 10:36:09 PM

All listing information is deemed reliable but not guaranteed and should be independently verified through personal inspection by appropriate professionals. Listings displayed on this website may be subject to prior sale or removal from sale; vailability of any listing should always be independently verified. Listing information is provided for consumer personal, non-commercial use, solely to identify potential properties for potential purchase; all other use is strictly prohibited and may violate relevant federal and state law. Copyright 2021 , Stellar MLS.