$365,000
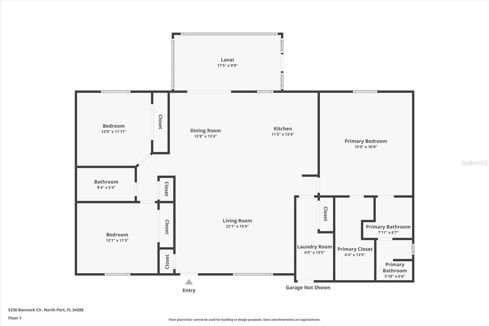
  • 3 beds
  • 2 baths
  • 1670 sqft
  • 0.23 acres
  • 2023 year built

Welcome to Suncoast Sanctuary — a Nearly New Gulf Star 3-Bedroom Pool Home with Canal Views, RV Pad & Premium Upgrades, Located in the Desirable X Flood Zone. Experience elevated Florida living in this impeccably maintained 3-bedroom, 2-bath residence designed for comfort, durability, and effortless enjoyment. With a bright, open split floor plan and modern coastal style, this home feels both inviting and refined from the moment you enter. Step outside to tranquil canal views from the expansive pool deck and backyard oasis. A professionally installed above-ground heated pool with deck access, along with a private hot tub surrounded by privacy screens, creates an ideal setting for entertaining or relaxing year-round. A large storage shed provides ample space for tools, recreational gear, or additional storage. No HOA restrictions add flexibility and freedom rarely found. Built with quality and care throughout, the home features hurricane-impact windows, a full generator hookup, and solid construction offering peace of mind in every season. Inside, the open-concept living space flows seamlessly into a beautifully appointed kitchen showcasing stainless steel appliances, granite countertops, soft-close wood cabinetry, and a spacious island with breakfast bar. The thoughtfully designed split floor plan places guest bedrooms on one side of the home, while the private primary suite offers a true retreat with a massive walk-in closet, dual vanities, dedicated makeup vanity, and a walk-in shower. The well-equipped laundry room includes additional pantry space, cabinetry, and a utility sink for added convenience. Perfectly positioned in an X flood zone and centrally located near Spring Training facilities, Wellen Park, North Port Water Park, airports, and more, this home offers easy access to Gulf beaches, golf courses, shopping, dining, and entertainment. This exceptional property delivers a rare combination of location, quality construction, modern upgrades, and outdoor living — a standout opportunity for discerning buyers seeking the best of Florida living.

 



5236 BANNOCK CIRCLE

Inquire about this home

Berkshire Hathaway HomeServices
Florida Realty

3192 Fruitville Rd, Sarasota, FL 34237


Explore: Port Charlotte Sub 45


Similar Listings

More Single Family Residence for sale near Port Charlotte Sub 45 in NORTH PORT Florida


$472.7K 1220 GANTRY RD NORTH PORT FL 34288

$469.9K 4831 OCALA TER NORTH PORT FL 34288

$469.9K 3195 ROYAL PALM DR NORTH PORT FL 34288

Listing Broker: MICHAEL SAUNDERS & COMPANY
Last Changed: Wednesday 18th of February 2026 06:34:09 PM

All listing information is deemed reliable but not guaranteed and should be independently verified through personal inspection by appropriate professionals. Listings displayed on this website may be subject to prior sale or removal from sale; vailability of any listing should always be independently verified. Listing information is provided for consumer personal, non-commercial use, solely to identify potential properties for potential purchase; all other use is strictly prohibited and may violate relevant federal and state law. Copyright 2021 , Stellar MLS.