$510,000
  • 5 beds
  • 3 baths
  • 2618 sqft
  • 0.23 acres
  • 1986 year built

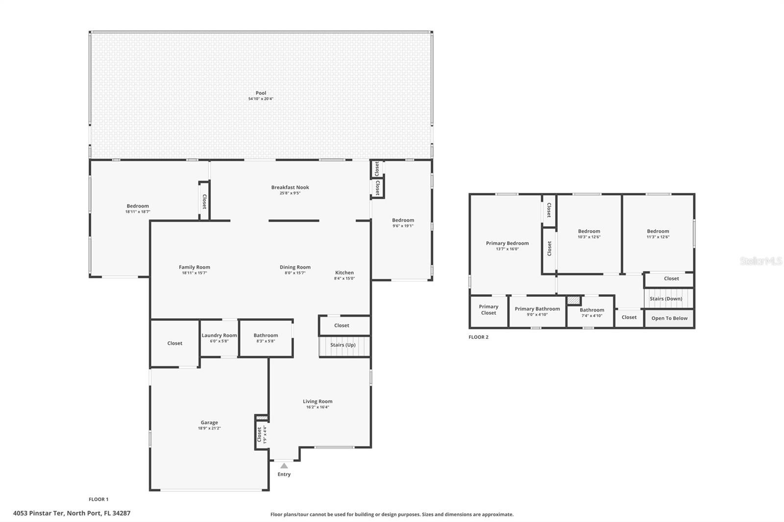
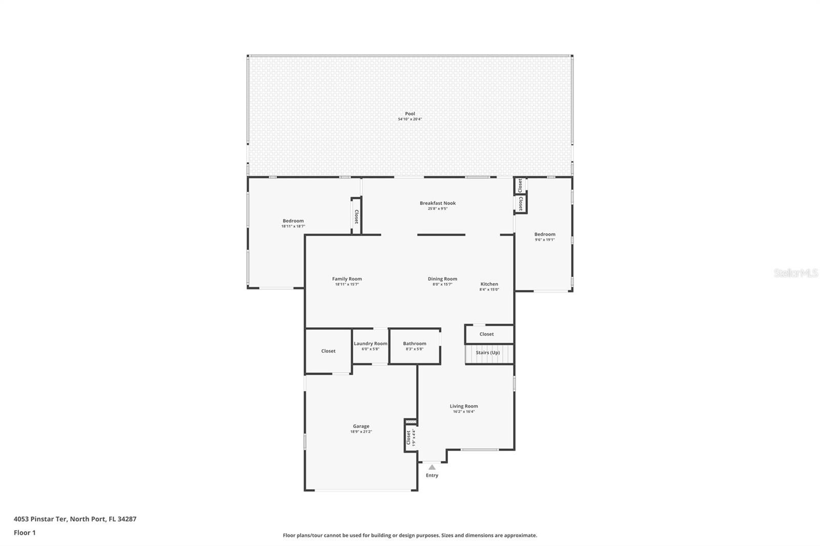
Not your typical waterfront home—this one is filled with charm, space, and sunset views that make every day feel like a getaway. Experience the beauty of waterfront living in this spacious two-story house, where character and architectural details set it apart from the ordinary. Perfectly positioned along the Blue Ridge Waterway, this home offers a unique connection to one of North Port’s scenic freshwater canal systems, known for kayaking, canoeing, and fishing—bringing outdoor adventure right to your backyard. This is not a cookie-cutter property—this is a warm, inviting home designed for comfortable everyday living and effortless entertaining. Major updates provide both style and peace of mind, including a standing-seam metal roof installed in 2023—a premium roofing system known for its exceptional durability and superior watertightness, with concealed fasteners that protect against the elements. Paired with hurricane-impact windows and an insulated impact-rated garage door, the home is well-equipped for storm readiness. Inside, the thoughtfully designed layout offers five bedrooms and three full baths, giving you the flexibility and space today’s lifestyle demands. The downstairs bedrooms are ideal for a home office, hobby rooms, or guest accommodations. At the heart of the home is a beautifully renovated eat-in kitchen featuring custom cabinetry, a farmhouse sink, stainless steel appliances, subway-tile backsplash, breakfast bar, quartz countertops, and pantry—perfectly suited for gathering and entertaining. Step outside to your private outdoor retreat, where a heated saltwater pool and screened lanai overlook the water, creating the perfect setting to relax and take in stunning sunset views. The combination of a peaceful waterfront setting and Flood Zone X designation is a rare advantage—allowing you to enjoy the beauty of the water with reduced flood risk and typically lower insurance costs. In addition to the two-car garage, the property offers a large driveway with ample space for boat or RV parking. With no HOA restrictions, you have the freedom to store your recreational vehicles right at home—adding both convenience and value. This is a truly special waterfront home offering space, character, modern updates, and a lifestyle that’s hard to match.

 



4053 PINSTAR TERRACE

Inquire about this home

Berkshire Hathaway HomeServices
Florida Realty

3192 Fruitville Rd, Sarasota, FL 34237


Explore: Port Charlotte Sub 01


Similar Listings

More Single Family Residence for sale near Port Charlotte Sub 01 in NORTH PORT Florida


$659.9K 5282 PINE SHADOW LN NORTH PORT FL 34287

$659.5K 1062 EAGLES FLIGHT WAY NORTH PORT FL 34287

$655K 1761 OKOLONA ST NORTH PORT FL 34287

Listing Broker: EXP REALTY LLC
Last Changed: Tuesday 14th of April 2026 10:54:29 AM

All listing information is deemed reliable but not guaranteed and should be independently verified through personal inspection by appropriate professionals. Listings displayed on this website may be subject to prior sale or removal from sale; vailability of any listing should always be independently verified. Listing information is provided for consumer personal, non-commercial use, solely to identify potential properties for potential purchase; all other use is strictly prohibited and may violate relevant federal and state law. Copyright 2021 , Stellar MLS.