$368,900
  • 3 beds
  • 2 baths
  • 1520 sqft
  • 15.04 acres
  • 2007 year built

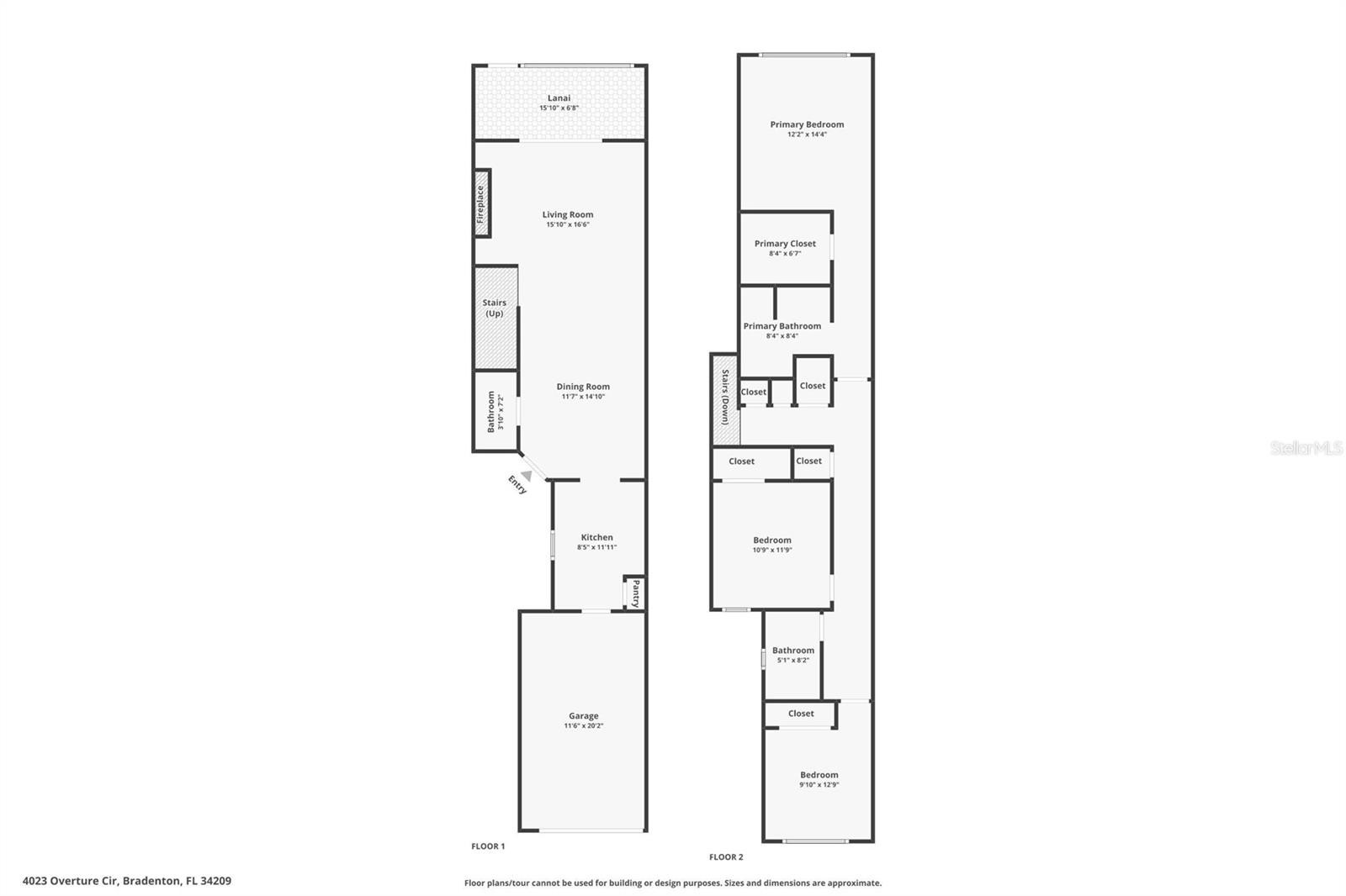
This is a MUST see townhouse in the beautiful maintenance-free community of Palma Sola Trace! This home is located in one of the few buildings in the community that are constructed entirely of concrete block for the 1st & 2nd floors. This home is also equipped with impact-resistant windows, slider and garage door PLUS it comes with a storm ready generator that is wired to the main breaker should the power go out, providing added peace of mind you will be much safer "hunkered" down in the event of storms.The roof was replaced in 2023. This home also includes sprinklers in the ceilings for added protection. This Carlisle floor plan offers open living space, 3 bedrooms, 2.5 baths, 1 car garage with added ceiling rack storage and a screened lanai with upgraded tile floors. Upon entry you will find highly upgraded finishes including plank tile flooring on the first level and a tranquil built-in electric fireplace in the living room. The kitchen is outfitted with 4 piece stainless steel appliances, professionally painted cabinets, granite counters, a closet pantry and extra storage space. The living and dining room combo offers the ideal space for entertaining or larger gatherings. The first floor and primary bedroom furniture is available. There is a very convenient half bathroom on the first floor eliminating the need to trek upstairs to find a bathroom. The stairs to the 2nd floor are luxury vinyl wood treads as is most of the flooring upstairs. For those that may have allergens...There is NO carpet in the home. The primary bedroom features a highly upgraded en-suite bath w/tiled walls, a walk-in shower with glass doors, an updated vanity with solid surface counters and even a state of the art mirror. There is a walk-in closet with built-in organizers along with a floor safe that remains with the home to protect your valuables or....whatever needs kept locked away. In addition there are plantation shutters on many of the windows in the home. There are 2 additional bedrooms both with luxury vinyl floors. The guest bathroom features a recently updated tiled walk-in shower. Theer is a list of all the upgrades this owner has made over their ownership. The Community fees include cable, internet, exterior maintenance and access to many amenities. Pet-friendly community with no age restrictions and is not located in a flood zone. Residents enjoy a maintenance-free lifestyle with plenty of time to enjoy world-famous beaches less than five miles away or the onsite clubhouse with a fitness center, heated lagoon style swimming pool, playground, library and catering kitchen. Community activities include yoga, book clubs, lunch groups, dances, social events and holiday parties. Conveniently located minutes away from Blake hospital, IMG Academy, golf courses, shopping and restaurants. Anna Maria Island is a short drive or an easy bike ride to enjoy deep sea fishing and jet-ski rentals are a few minutes away at the Manatee Ave causeway. One can also enjoy kayaking and picnicking at Robinson's Preserve. Make your appointment today to view this amazing home. ** Taxes listed include the Taxes + CDD **

 



4023 OVERTURE CIRCLE

Inquire about this home

Berkshire Hathaway HomeServices
Florida Realty

3192 Fruitville Rd, Sarasota, FL 34237


Explore: Palma Sola Trace


Similar Listings

More Condominium for sale near Palma Sola Trace in BRADENTON Florida


$469.9K 3418 79TH STREET CIR W #101 BRADENTON FL 34209

$459.9K 7611 34TH AVE W #302 BRADENTON FL 34209

$439K 840 AUDUBON DR #840 BRADENTON FL 34209

Listing Broker: THE KEYES COMPANY - SARASOTA
Last Changed: Wednesday 11th of February 2026 02:37:14 PM

All listing information is deemed reliable but not guaranteed and should be independently verified through personal inspection by appropriate professionals. Listings displayed on this website may be subject to prior sale or removal from sale; vailability of any listing should always be independently verified. Listing information is provided for consumer personal, non-commercial use, solely to identify potential properties for potential purchase; all other use is strictly prohibited and may violate relevant federal and state law. Copyright 2021 , Stellar MLS.