$575,000
  • 4 beds
  • 3 baths
  • 3052 sqft
  • 1.03 acres
  • 1984 year built

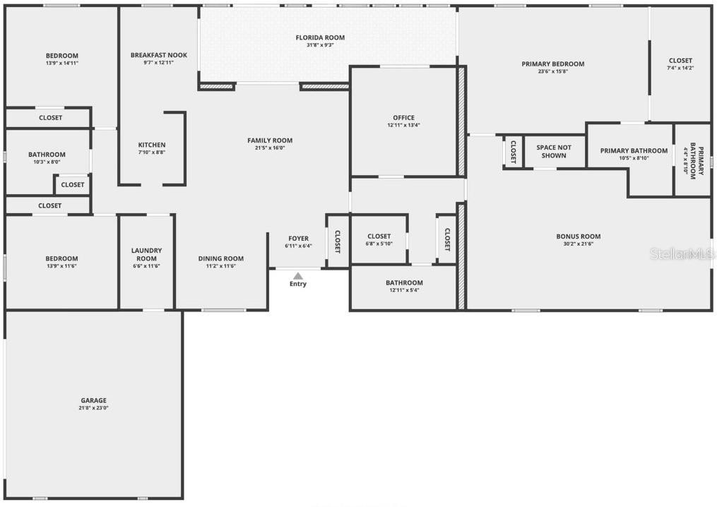
Under contract-accepting backup offers. Gorgeous home on a sprawling one acre one acre property off of Desoto Road! This property offers the rare combination of space, versatility, and prime Sarasota location. The home is a 4 bedroom 3 baths plus an office, is over 3,000 square feet, and features an extra large two car garage. Designed for flexibility, the 4th bedroom / bonus room and office can be used as a private in-residence suite complete with its own kitchenette, living area, bedroom, and full bath—ideal for multi-generational living, long-term guests, or a private office retreat. The main home offers multiple living areas and a highly functional layout, creating seamless flow for both everyday comfort and entertaining. Thoughtful updates include a roof replaced just six years ago and a newer air-conditioning system—providing peace of mind and modern convenience. Perfectly positioned just 10 minutes from the shopping, dining, and entertainment of University Town Center and approximately 15 minutes to the vibrant culture and waterfront of downtown Sarasota, this property delivers privacy without sacrificing proximity. A rare opportunity to own acreage and square footage in one of Sarasota’s most accessible locations. Perfectly positioned just 10 minutes from the shopping, dining, and entertainment of University Town Center and approximately 15 minutes to the vibrant culture and waterfront of downtown Sarasota, this property delivers privacy without sacrificing proximity. A rare opportunity to own acreage and square footage in one of Sarasota’s most accessible locations.

 



3917 DESOTO ROAD

Inquire about this home

Berkshire Hathaway HomeServices
Florida Realty

3192 Fruitville Rd, Sarasota, FL 34237


Explore: Desoto Pines


Similar Listings

More Single Family Residence for sale near Desoto Pines in SARASOTA Florida


$725K 5515 DOWNHAM MDWS SARASOTA FL 34235

$725K 5507 CYNTHIA LN SARASOTA FL 34235

$675K 4963 RUTLAND GATE SARASOTA FL 34235

Listing Broker: RE/MAX ALLIANCE GROUP
Last Changed: Thursday 05th of March 2026 01:47:09 PM

All listing information is deemed reliable but not guaranteed and should be independently verified through personal inspection by appropriate professionals. Listings displayed on this website may be subject to prior sale or removal from sale; vailability of any listing should always be independently verified. Listing information is provided for consumer personal, non-commercial use, solely to identify potential properties for potential purchase; all other use is strictly prohibited and may violate relevant federal and state law. Copyright 2021 , Stellar MLS.