$389,000
  • 3 beds
  • 2 baths
  • 1536 sqft
  • 0.13 acres
  • 2016 year built

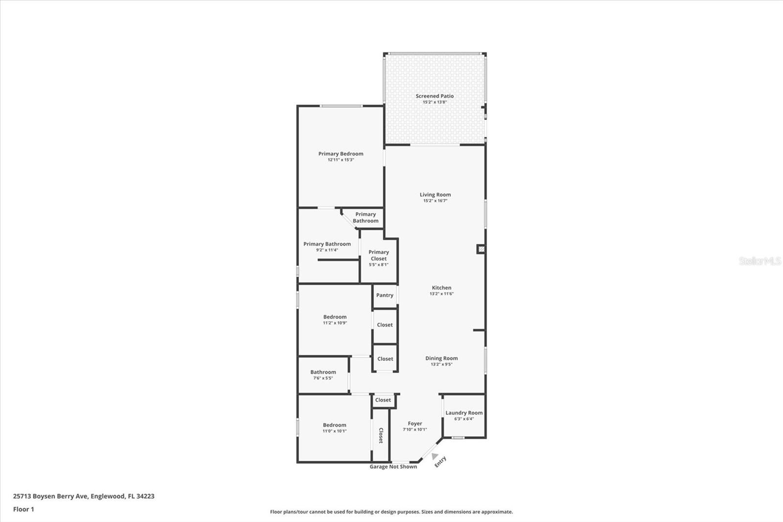
Not a drive by....This home is outstanding! Take advantage of this price adjustment before someone else does. Welcome to your slice of Florida paradise in Keyway Place—a gated, maintenance-free community of just 70 homes. This residence enjoys one of the premier locations in the community: a quiet cul-de-sac with no neighbors on one side, bordered instead by a large oak tree, preserve, and manicured open green space. Out back, your lanai looks straight down the long pond for serene water and nature views you’ll love coming home to. Step inside and you’re welcomed by a dining area that flows into the chef’s kitchen—complete with granite countertops, stainless steel appliances, wood cabinetry, pantry closet, and both an island and breakfast bar with seating. From there, the open-concept great room with tray ceiling draws you out to the extended enclosed lanai, where the pond and preserve become your backdrop for relaxing or entertaining. The split-floorplan offers privacy with a spacious primary suite featuring pond views, a walk-in closet, and ensuite bath with dual sinks and large walk-in shower. Two guest bedrooms, a full bath, and a dedicated laundry room provide both comfort and convenience. Stylish touches throughout include tile wood-plank flooring, crown molding, two shiplap accent walls, and 5” baseboards. Life here is truly low-maintenance: the $300/month HOA covers lawn care, mulch, hedge trimming, irrigation, with reclaimed water, gate maintenance, all common area landscaping and irrigation, and amenities—plus, no CDD fees. Enjoy the heated/chilled community pool, covered pool deck and restrooms. This community also has a scenic lake with a walking path, perfect for birdwatching and daily strolls. Just 3 miles from Manasota Beach and close to Englewood Beach, Venice, Venice Island, and Wellen Park—you’ll have easy access to local markets, dining, boating, and shopping while enjoying the peace of a small, tucked-away community. Whether a seasonal retreat or full-time residence, this home offers the perfect blend of location, lifestyle, and privacy. The lifestyle will last a lifetime—but this opportunity won’t! Contact me today for your private showing.

 



25713 BOYSEN BERRY AVENUE

Inquire about this home

Berkshire Hathaway HomeServices
Florida Realty

3192 Fruitville Rd, Sarasota, FL 34237


Explore: Keyway Place


Similar Listings

More Single Family Residence for sale near Keyway Place in ENGLEWOOD Florida


$500K 1828 SILVER SHORES BLVD ENGLEWOOD FL 34223

$500K 1832 SILVER SHORES BLVD ENGLEWOOD FL 34223

$499.9K 576 GADSEN ST ENGLEWOOD FL 34223

Listing Broker: COLDWELL BANKER SARASOTA CENT.
Last Changed: Friday 17th of October 2025 07:03:10 PM

All listing information is deemed reliable but not guaranteed and should be independently verified through personal inspection by appropriate professionals. Listings displayed on this website may be subject to prior sale or removal from sale; vailability of any listing should always be independently verified. Listing information is provided for consumer personal, non-commercial use, solely to identify potential properties for potential purchase; all other use is strictly prohibited and may violate relevant federal and state law. Copyright 2021 , Stellar MLS.