$700,000
  • 3 beds
  • 2 baths
  • 2263 sqft
  • 0.27 acres
  • 2005 year built

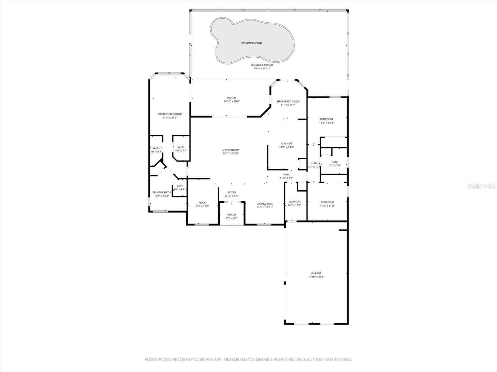
Welcome to your Florida dream home!! This beautifully designed 3-bedroom, 2-bath, 3-car garage POOL HOME offers 2,263 sq ft of spacious, light-filled living on an oversized, serene pond-view lot in the gated community of Greyhawk Landing. Step inside to discover a bright, open floor plan enhanced by a stunning double tray ceiling with crown molding in the living room, creating an elegant and spacious atmosphere. The home has been completely refreshed in the last few years with newly painted interiors, including the kitchen and bathroom cabinetry, along with all-new light fixtures and ceiling fans for a modern, cohesive look. Upgraded flooring in both the living room and den adds style and durability where it matters most. The kitchen is a true standout, featuring updated quartz countertops, a large single-bowl sink, gas range, and ample cabinetry, perfectly designed for both everyday living and entertaining. Seamlessly blending indoor and outdoor living, the home features a pocket sliding glass door that opens fully to the lanai, complete with an upgraded accordion shade for added comfort and privacy. Step outside to your private backyard oasis, where a pool and spa, added in 2021, are surrounded by an extended pavered patio, ideal for lounging and hosting. A 4-foot paver walkway wraps around the exterior of the pool cage, adding both function and visual appeal. The generously sized primary suite serves as a serene retreat, featuring a private en-suite bath, dual walk-in closets, abundant natural light, and direct access to the lanai through sliding glass doors. A thoughtfully designed split floor plan enhances privacy, with two additional bedrooms ideal for family or guests, while the versatile den offers the perfect space for a home office, media room, playroom, or even a potential fourth bedroom. Peace of mind comes with major system upgrades, including a brand-new roof (2025), new HVAC (2025), and new water heater (2024), ensuring years of worry-free ownership. Greyhawk Landing is a highly sought-after gated community known for its resort-style amenities, natural beauty, and family-friendly atmosphere. Residents enjoy access to multiple pools, clubhouses, fitness facilities, and miles of scenic walking and biking trails set among lush preserves and tranquil lakes. The neighborhood offers a strong sense of community with frequent events, playgrounds, and open green spaces, all while being conveniently located near top-rated schools, shopping, dining, and just a short drive to the Gulf Coast’s beautiful beaches. This is more than a home; it’s a lifestyle upgrade. Don’t miss your opportunity to own this meticulously maintained and beautifully enhanced property.

 



220 DOVE TRAIL

Inquire about this home

Berkshire Hathaway HomeServices
Florida Realty

3192 Fruitville Rd, Sarasota, FL 34237


Explore: Greyhawk Landing Ph 3


Similar Listings

More Single Family Residence for sale near Greyhawk Landing Ph 3 in BRADENTON Florida


$905K 709 COUNTRY MEADOWS WAY BRADENTON FL 34212

$899.9K 6151 9TH AVENUE CIR NE BRADENTON FL 34212

$899.9K 16918 WATERLINE RD BRADENTON FL 34212

Listing Broker: REALTY ONE GROUP MVP
Last Changed: Monday 30th of March 2026 12:47:09 PM

All listing information is deemed reliable but not guaranteed and should be independently verified through personal inspection by appropriate professionals. Listings displayed on this website may be subject to prior sale or removal from sale; vailability of any listing should always be independently verified. Listing information is provided for consumer personal, non-commercial use, solely to identify potential properties for potential purchase; all other use is strictly prohibited and may violate relevant federal and state law. Copyright 2021 , Stellar MLS.