$2,200
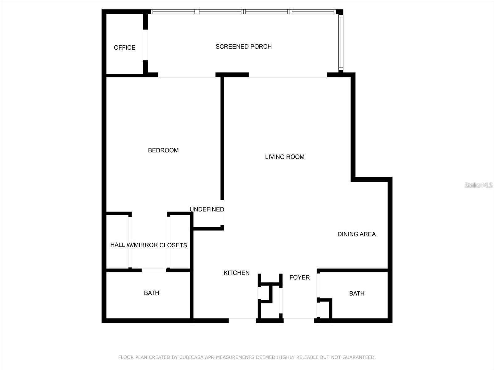
  • 1 beds
  • 1 baths
  • 778 sqft
  • 0 acres
  • 1968 year built

Enjoy beachside living at Lido Harbour South on Lido Key. The condo can be leased with furniture if needed. This east-facing condo features one bedroom, one and a half baths, and a bright, inviting layout. The kitchen offers granite countertops and stainless steel appliances, while the enclosed Florida room, with hurricane-impact windows, a ceiling fan, and a closet, provides the perfect spot to relax and enjoy the morning light. For added convenience, a washer is located in the primary bedroom closet, with a communal laundry room on the same floor. Residents have private beach access, a community pool, and a patio area with tables, lounge chairs, and an outdoor shower - everything needed for the perfect day in the sun. In the evenings, take in breathtaking sunsets from the private beach. Ideally located near Ted Sperling Park at South Lido Key Beach, where you can explore scenic nature trails or kayak through peaceful mangrove tunnels, and only minutes from St. Armands Circle's renowned dining and boutiques and the vibrant arts and culture of Downtown Sarasota, this condo captures the essence of relaxed island living.

 



Inquire about this home

Berkshire Hathaway HomeServices
Florida Realty

3192 Fruitville Rd, Sarasota, FL 34237


Explore: Lido Harbour South


Listing Broker: YORKSHIRE INTERNATIONAL R.E.
Last Changed: Wednesday 27th of May 2026 01:43:10 PM

All listing information is deemed reliable but not guaranteed and should be independently verified through personal inspection by appropriate professionals. Listings displayed on this website may be subject to prior sale or removal from sale; vailability of any listing should always be independently verified. Listing information is provided for consumer personal, non-commercial use, solely to identify potential properties for potential purchase; all other use is strictly prohibited and may violate relevant federal and state law. Copyright 2021 , Stellar MLS.