$320,000
  • 2 beds
  • 2 baths
  • 1572 sqft
  • 0.13 acres
  • 2015 year built

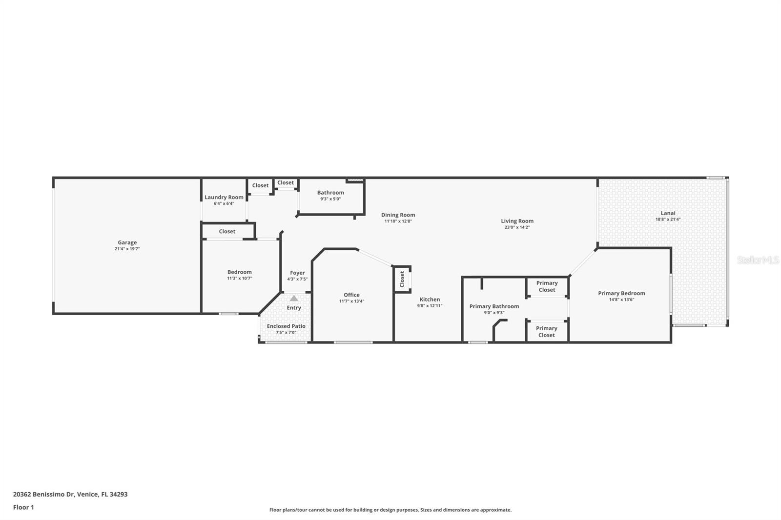
Discover the perfect blend of comfort and convenience in this move-in ready attached villa at 20362 Benissimo Dr, nestled in the desirable gated community of Gran Paradiso within vibrant Wellen Park, Venice, FL. This like-new 2-bedroom, 2-bathroom home plus a versatile den/office and a 2-car garage offers low-maintenance living at its finest. Exterior lawn care is included, allowing you more time to enjoy the Florida lifestyle. Relax on the extended screened lanai overlooking a peaceful greenbelt view, ideal for morning coffee, afternoon chats, or evening wine. Sold unfurnished, this villa is a blank canvas ready for your personal touch—perfect as a full-time residence, seasonal vacation home, or smart investment property. Residents of Gran Paradiso enjoy resort-style amenities including a stunning clubhouse, resort-style pool, fitness center, tennis and pickleball courts, sauna, yoga studio, and more—all set amidst lush preserves and lakes. Prime location just minutes from historic downtown Venice, beautiful Gulf beaches, shopping, dining, and the exciting CoolToday Park, home to the Atlanta Braves spring training. Don't miss this opportunity to own a piece of paradise in one of Southwest Florida's most sought-after communities!

 



20362 BENISSIMO DRIVE

Inquire about this home

Berkshire Hathaway HomeServices
Florida Realty

3192 Fruitville Rd, Sarasota, FL 34237


Explore: Gran Paradiso Ph 1


Similar Listings

More Villa for sale near Gran Paradiso Ph 1 in VENICE Florida


$415K 11512 OKALOOSA DR VENICE FL 34293

$414K 18483 GREEN GARDEN CT VENICE FL 34293

$413K 18131 FRANKLIN PARK CT VENICE FL 34293

Listing Broker: RE/MAX PALM REALTY OF VENICE
Last Changed: Friday 26th of December 2025 02:57:09 PM

All listing information is deemed reliable but not guaranteed and should be independently verified through personal inspection by appropriate professionals. Listings displayed on this website may be subject to prior sale or removal from sale; vailability of any listing should always be independently verified. Listing information is provided for consumer personal, non-commercial use, solely to identify potential properties for potential purchase; all other use is strictly prohibited and may violate relevant federal and state law. Copyright 2021 , Stellar MLS.