$359,000
  • 2 beds
  • 2 baths
  • 1540 sqft
  • 0.13 acres
  • 2001 year built

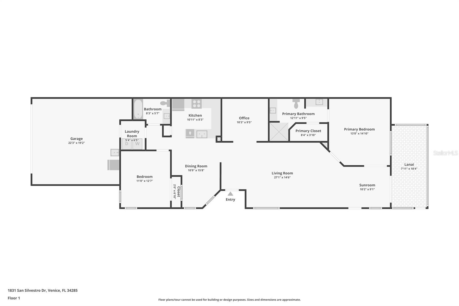
Back on the market and priced to sell — now offered fully furnished with high-end furnishings! This bright and sunny Birdie-model end villa is ideal for buyers who value privacy, green space, and beautiful landscaping. Large south-facing windows overlook a lush private preserve, filling the home with natural light and a serene Florida feel. Featuring a desirable split-bedroom floor plan, this 2-bedroom, 2-bath plus den villa offers an open-concept great room, casual in-kitchen dining, an enclosed sunroom with double sliders, and an extended private patio—perfect for relaxing or entertaining. A double garage adds convenience and storage. Located in the 24/7 guard-gated Pelican Pointe Golf & Country Club, residents enjoy an exceptional lifestyle with 27 holes of championship golf (consistently ranked the best in Venice since 2002), with golf membership optional. Non-golfers will appreciate the extensive amenities included in the low HOA: a heated junior Olympic pool, separate Links community pool, tennis and pickleball courts, clubhouse with restaurant, bar & grille, and a full social calendar—including a women’s association with 45+ interest groups. Pelican Pointe is a vibrant, welcoming community surrounded by natural lakes, wetlands, and abundant birdlife, just minutes from downtown Venice Island, Gulf beaches, the Legacy Trail, cultural attractions, top-rated medical facilities, and major airports. Recent upgrades include: New carpet in both bedrooms (2025), fresh interior & exterior paint (2025), new tile roof (2023), new water heater (2022), newer A/C (2019), stainless steel appliances. The low HOA fee covers social club membership, cable, internet, lawn and landscape care, exterior maintenance (including roof & paint), pest control, and more—offering true lock-and-leave peace of mind. Recently reduced by $11,000 and now sold fully furnished — this home offers exceptional value and an easy Florida lifestyle, don't miss this opportunity.

 



1831 SAN SILVESTRO DRIVE

Inquire about this home

Berkshire Hathaway HomeServices
Florida Realty

3192 Fruitville Rd, Sarasota, FL 34237


Explore: Pelican Pointe Golf & Country Club


Similar Listings

More Villa for sale near Pelican Pointe Golf & Country Club in VENICE Florida


$449K 500 PARK BLVD S #93 VENICE FL 34285

$435K 1801 SAN SILVESTRO DR VENICE FL 34285

$429.9K 1816 SAN TROVASO WAY VENICE FL 34285

Listing Broker: EXP REALTY LLC
Last Changed: Saturday 10th of January 2026 09:06:13 PM

All listing information is deemed reliable but not guaranteed and should be independently verified through personal inspection by appropriate professionals. Listings displayed on this website may be subject to prior sale or removal from sale; vailability of any listing should always be independently verified. Listing information is provided for consumer personal, non-commercial use, solely to identify potential properties for potential purchase; all other use is strictly prohibited and may violate relevant federal and state law. Copyright 2021 , Stellar MLS.