$527,990
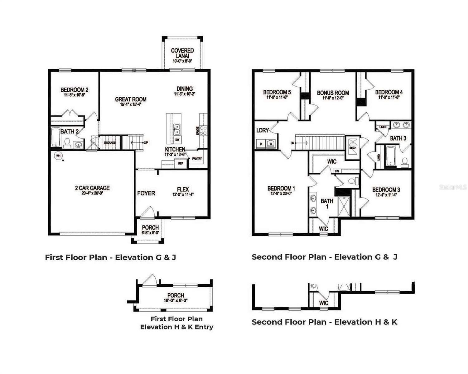
  • 5 beds
  • 3 baths
  • 2605 sqft
  • 0.17 acres
  • 2025 year built

Under Construction. Receive special interest rates and up to $10,000 towards closing costs with the use of our preferred lender, now through October 19th. Star Farms at Lakewood Ranch is D.R. Horton's premier destination located in the award-winning master-planned community of Lakewood Ranch. Set within Southwest Florida's natural beauty and close to many popular area attractions, this 700-acre gated neighborhood will consist of 1,500 single-family homes, townhomes, and paired villas, all designed to meet the needs of today’s modern family. Star Farms is debuting our new Express Modern Series homes, ornamented with chic, contemporary exteriors and complete with matching trendy interior finishes. All homes will include luxury vinyl plank flooring in the main living areas, quartz countertops throughout, stainless steel appliances, and much more! All of our homes feature all-concrete block construction on the first and second floors and D.R. Horton’s state-of-the-art Smart Home Automation system. Homeowners will enjoy amenities that include The Resort Club, Cabana Corner, Junction Place, and scenic greenways and trails. For fun outside of the community, top dining, and shopping destinations, along with the area’s top-rated beaches are within close reach. Let America’s #1 Builder help you attain your piece of The Ranch at Star Farms at Lakewood Ranch

 



18115 WHEATHOUSE PLACE

Inquire about this home

Berkshire Hathaway HomeServices
Florida Realty

3192 Fruitville Rd, Sarasota, FL 34237


Explore: Star Farms At Lakewood Ranch


Similar Listings

More Single Family Residence for sale near Star Farms At Lakewood Ranch in LAKEWOOD RANCH Florida


$685K 18373 ROCKPORT PL LAKEWOOD RANCH FL 34211

$683.4K 18021 GANDER TER BRADENTON FL 34211

$680K 18119 CRESSWIND TER LAKEWOOD RANCH FL 34211

Listing Broker: D.R. HORTON REALTY OF SARASOTA
Last Changed: Saturday 18th of October 2025 10:48:42 AM

All listing information is deemed reliable but not guaranteed and should be independently verified through personal inspection by appropriate professionals. Listings displayed on this website may be subject to prior sale or removal from sale; vailability of any listing should always be independently verified. Listing information is provided for consumer personal, non-commercial use, solely to identify potential properties for potential purchase; all other use is strictly prohibited and may violate relevant federal and state law. Copyright 2021 , Stellar MLS.