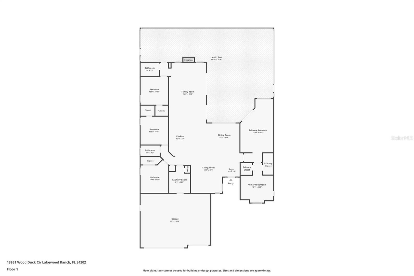
Welcome to 13951 Wood Duck Circle, a beautifully updated home that offers comfort, quality, and easy Florida living in one of Lakewood Ranch’s most desirable locations. This light-filled residence features an open-concept layout with woodgrain tile flooring, a soft neutral color palette, and tasteful finishes throughout, creating a welcoming and move-in-ready feel. The kitchen is designed to be both practical and inviting, with a gas range, solid wood cabinetry, quartz countertops, stainless steel appliances, a touchless faucet, and a built-in glass rinser. It opens naturally to the dining area and living room, making it ideal for everyday living and entertaining. A stone fireplace adds warmth and character to the main living space. The split-bedroom floor plan provides privacy and flexibility. Three guest bedrooms and an updated pool bath are located on one side of the home, while the primary suite is tucked away and offers peaceful lake and pool views, a sitting area, dual walk-in closets, and a spacious en-suite bath with quartz countertops, an oversized walk-in shower, and a soaking tub. All bathrooms have been updated with modern finishes, including quartz countertops and frameless glass showers. Sliding glass doors with new hardware lead to the screened lanai, where you can enjoy indoor and outdoor living year-round. The pool has been upgraded to gas heat for quicker, more efficient heating, and the lanai overlooks tranquil lake views. Recent outdoor improvements include brand new lanai decking completed in 2025 and no-see-um screens added in 2023. Major updates have already been completed, including a new roof in 2020, a full interior remodel between 2021 and 2022, and a brand new water heater. The oversized three-car garage features epoxy flooring, new garage door motors, and a mini-split air conditioning system. Additional features include a central vacuum system and energy-efficient systems throughout. Located just minutes from I-75, top-rated schools, Adventure Park, Waterside Place, and University Town Center, this home offers convenience, comfort, and an exceptional Lakewood Ranch lifestyle. With its thoughtful updates, functional layout, and peaceful setting, this home is easy to love and ready to enjoy. 13951 Wood Duck Circle is more than a house... it’s where new memories are waiting to be made. Schedule your private showing and see why this property stands out.
Berkshire Hathaway HomeServices
Florida Realty
3192 Fruitville Rd, Sarasota, FL 34237
Listing Broker: INNOVATE REAL ESTATE
Last Changed: Sunday 08th of February 2026 11:48:20 AM
All listing information is deemed reliable but not guaranteed and should be independently verified through personal inspection by appropriate professionals. Listings displayed on this website may be subject to prior sale or removal from sale; vailability of any listing should always be independently verified. Listing information is provided for consumer personal, non-commercial use, solely to identify potential properties for potential purchase; all other use is strictly prohibited and may violate relevant federal and state law. Copyright 2021 , Stellar MLS.