$325,000
  • 2 beds
  • 2 baths
  • 1568 sqft
  • 0.16 acres
  • 2018 year built

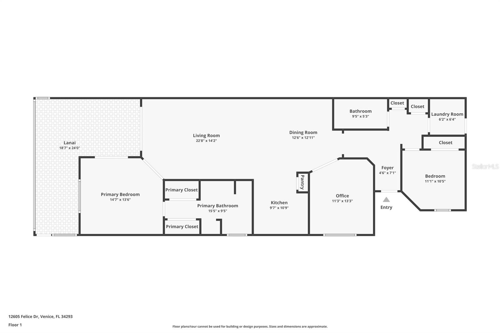
Offered turnkey furnished with completed inspection! This villa is ready for you to move in and immediately enjoy the gated, resort-style community of Gran Paradiso. A home that that wraps you in comfort while keeping life light and fun. Positioned to overlook one of the picturesque waterways, the home enjoys a larger lot that provides extra space and privacy between neighbors. From the moment you arrive, the screened front entrance and leaded glass front door set a welcoming tone. Hurricane protection is fully integrated with RARELY SEEN power-screened coverage for all windows and openings, offering peace of mind year-round. Once inside, you will notice details like crown molding in the common areas, tile laid on the diagonal and Hunter Douglas motorized window coverings in the living room and primary bedroom. With 1,568 square feet of living space, this residence features two bedrooms plus a den, two bathrooms, and a two-car garage. The flex room with doors adds versatility, whether you envision it as a home office, guest space, or hobby retreat. The kitchen has a pantry, undercabinet lighting and a tasteful backsplash. The extended lanai invites you to relax outdoors with serene water views. The primary suite is complete with an ensuite bath with dual vanities, a soaking tub, and a walk-in shower. Carpeted bedrooms add warmth and comfort, while the laundry room is extra spacious. Within the gates of Tuscan-inspired Gran Paradiso, you will find a huge tropical salt water heated pool, state of the art fitness center, pickle ball, tennis courts and basketball, clubhouse, game room, library and office center. There are always events and activities to participate in. Here in Wellen Park, you are a few minutes street-legal golf cart drive away to the Atlanta Braves training facility and stadium. Shopping, dining, biking, walking, boating – all right here! Historic downtown Venice, many illustrious beaches and championship golf courses are all within a 15-minute drive. Isn’t it time to live your best life NOW?!!

 



12605 FELICE DRIVE

Inquire about this home

Berkshire Hathaway HomeServices
Florida Realty

3192 Fruitville Rd, Sarasota, FL 34237


Explore: Gran Paradiso Ph 1


Similar Listings

More Villa for sale near Gran Paradiso Ph 1 in VENICE Florida


$418K 11857 BOUNDLESS TER VENICE FL 34293

$417K 12709 PALATKA DR VENICE FL 34293

$413K 18131 FRANKLIN PARK CT VENICE FL 34293

Listing Broker: COLDWELL BANKER REALTY
Last Changed: Tuesday 06th of January 2026 06:39:10 PM

All listing information is deemed reliable but not guaranteed and should be independently verified through personal inspection by appropriate professionals. Listings displayed on this website may be subject to prior sale or removal from sale; vailability of any listing should always be independently verified. Listing information is provided for consumer personal, non-commercial use, solely to identify potential properties for potential purchase; all other use is strictly prohibited and may violate relevant federal and state law. Copyright 2021 , Stellar MLS.