$525,000
  • 3 beds
  • 2 baths
  • 1679 sqft
  • 0.15 acres
  • 1999 year built

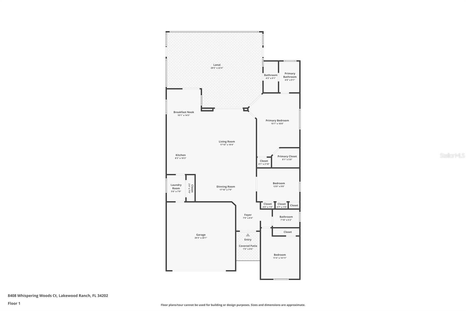
Freshly updated and sitting on one of Edgewater’s prime preserve lots, this home brings the privacy buyers want with the convenience they rarely find. Since late 2024, the owners have gone through the place top to bottom with new LG appliances in 2024, new flooring throughout in 2025, and a brand-new tile roof completed in October 2025. Nothing here feels dated or overlooked. The kitchen holds its own with solid wood cabinetry, pantry cabinets, granite counters, a new backsplash, and a built-in breakfast banquette with storage that looks straight out to the preserve. It’s a great use of space and gives the kitchen real personality. The owner’s suite includes a generous walk-in closet and granite-topped vanities, while the guest bath has been upgraded with quartz. The second bedroom features custom built-ins and overhead storage. Crown molding and plantation shutters run throughout the home and add timeless appeal. Outside, the expanded screened lanai gives you a quiet, private backdrop and plenty of room for entertaining or simply unwinding. Edgewater is one of Lakewood Ranch’s most established and sought-after maintenance-free gated neighborhoods. You have direct pathway access to Main Street so shops, dining, movies, and regular events are all a short walk or cart ride away. Residents also enjoy a clubhouse, heated pool and spa, pier and gazebo, walking trails, and access to the 3.5-mile path around Lake Uihlein for fishing, kayaking, and sunrise or sunset walks. Another community path connects to Lakewood Ranch County Park for additional recreation. You are minutes from I-75, UTC, top medical care, SRQ Airport, theaters, and the Gulf beaches. If you’re looking for a move-ready home in a proven Lakewood Ranch community with privacy, updates, and access that is tough to match, this one deserves a serious look. Make sure to check out the 3D tour by clicking on the virtual tour button

 



8408 WHISPERING WOODS COURT

Inquire about this home

Berkshire Hathaway HomeServices
Florida Realty

3192 Fruitville Rd, Sarasota, FL 34237


Explore: Edgewater Village Subphase A Unit 4b


Similar Listings

More Single Family Residence for sale near Edgewater Village Subphase A Unit 4b in LAKEWOOD RANCH Florida


$679.9K 17631 COLEBROOK CIR LAKEWOOD RANCH FL 34202

$679K 7223 ORCHID ISLAND PL BRADENTON FL 34202

$678K 17148 HAMPTON FALLS TER BRADENTON FL 34202

Listing Broker: COLDWELL BANKER REALTY
Last Changed: Tuesday 16th of December 2025 12:09:09 AM

All listing information is deemed reliable but not guaranteed and should be independently verified through personal inspection by appropriate professionals. Listings displayed on this website may be subject to prior sale or removal from sale; vailability of any listing should always be independently verified. Listing information is provided for consumer personal, non-commercial use, solely to identify potential properties for potential purchase; all other use is strictly prohibited and may violate relevant federal and state law. Copyright 2021 , Stellar MLS.