$950,000
  • 4 beds
  • 3 baths
  • 3316 sqft
  • 0.2 acres
  • 1989 year built

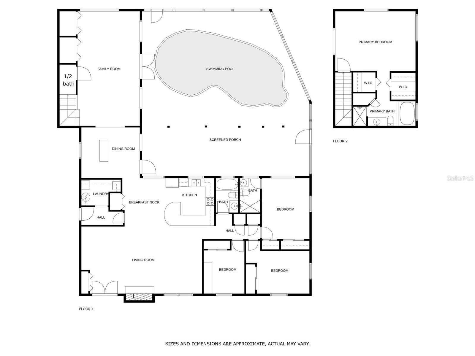
This spacious and bright residence, situated on a generous corner lot, epitomizes waterfront living. The open floor plan features four bedrooms and three-and-a-half bathrooms, including two ensuite bedrooms. The second-floor primary suite offers dual walk-in closets, jetted tub, walk-in shower, and views of the bay and canal. Designed for both comfort and entertainment, the home boasts a heated pool and an expansive screened lanai, ideal for relaxation and enjoying picturesque sunsets. Additional amenities include a wood burning coral-front fireplace, tons of storage space, an over-sized tandem RV/boat garage with workshop, two driveways, a dock/lift (10K pounds), and unrestricted deep-water access with no bridges to bay and gulf. Notably, this elevated concrete home sustained no damage from recent hurricanes. It is well-suited as either a primary residence or a short-term rental investment possibility. Roof 2025, HWH 2024

 



4819 PALMETTO POINT DRIVE

Inquire about this home

Berkshire Hathaway HomeServices
Florida Realty

3192 Fruitville Rd, Sarasota, FL 34237


Explore: Palmetto Skyway Rep


Similar Listings

More Single Family Residence for sale near Palmetto Skyway Rep in PALMETTO Florida


$1.2M 710 16TH AVE E PALMETTO FL 34221

$1.1M 4506 17TH ST W PALMETTO FL 34221

$1.1M 903 20TH AVE W PALMETTO FL 34221

Listing Broker: WAGNER REALTY
Last Changed: Saturday 01st of November 2025 03:51:09 PM

All listing information is deemed reliable but not guaranteed and should be independently verified through personal inspection by appropriate professionals. Listings displayed on this website may be subject to prior sale or removal from sale; vailability of any listing should always be independently verified. Listing information is provided for consumer personal, non-commercial use, solely to identify potential properties for potential purchase; all other use is strictly prohibited and may violate relevant federal and state law. Copyright 2021 , Stellar MLS.