$136,900
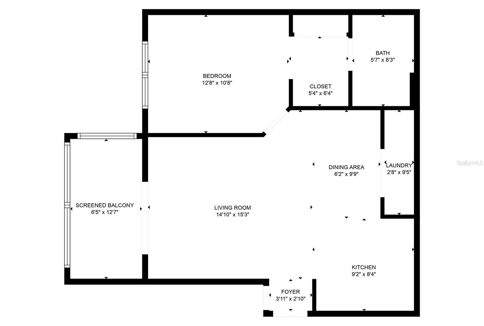
  • 1 beds
  • 1 baths
  • 661 sqft
  • acres
  • 1998 year built

MOTIVATED SELLER!! Welcome to Bella Villino, nestled within proximity to the acclaimed Siesta Key Beach, renowned for its pristine sands and azure waters. This pet-friendly and maintenance-free community offers an exceptional lifestyle, featuring exterior paint completed in 2023, along with brand-new hurricane impact windows! This move-in ready, second-floor unit offers a bright and open living space, filled with natural light and beautiful pond views, lush greenery, and local wildlife—the perfect backdrop for your morning coffee or relaxing evenings. Step inside to a thoughtfully updated home, featuring a completely renovated kitchen with white cabinetry, stainless steel appliances, and an open-concept layout that seamlessly connects to the living and dining areas. The upgrades continue throughout with luxury vinyl flooring, an updated bathroom, and built-in closets in the master bedroom. Additionally, this unit features in-unit laundry with a washer and dryer for your convenience. Bella Villino offers a range of amenities for an active and social lifestyle. Enjoy the clubhouse with a fitness center, indoor racquetball and basketball courts, lighted tennis courts, billiards, a business center, a resort-style pool, a secluded hot tub, and peaceful pond views. Host friends and family at the outdoor gas grill station, and enjoy the convenience of on-site management for carefree living. Whether you’re looking for your new home or a perfect seasonal retreat, this condo is ready for you to move right in and start enjoying everything Bella Villino and Sarasota have to offer!

 



4138 CENTRAL SARASOTA PARKWAY

Inquire about this home

Berkshire Hathaway HomeServices
Florida Realty

3192 Fruitville Rd, Sarasota, FL 34237


Explore: Bella Villino Iv


Similar Listings

More Condominium for sale near Bella Villino Iv in SARASOTA Florida


$175K 4160 CENTRAL SARASOTA PKWY #633 SARASOTA FL 34238

$172K 4142 CENTRAL SARASOTA PKWY #1426 SARASOTA FL 34238

$165K 4142 CENTRAL SARASOTA PKWY #1415 SARASOTA FL 34238

Listing Broker: KELLER WILLIAMS ON THE WATER S
Last Changed: Thursday 23rd of October 2025 04:19:08 PM

All listing information is deemed reliable but not guaranteed and should be independently verified through personal inspection by appropriate professionals. Listings displayed on this website may be subject to prior sale or removal from sale; vailability of any listing should always be independently verified. Listing information is provided for consumer personal, non-commercial use, solely to identify potential properties for potential purchase; all other use is strictly prohibited and may violate relevant federal and state law. Copyright 2021 , Stellar MLS.