$499,750
  • 3 beds
  • 2 baths
  • 1711 sqft
  • 0.37 acres
  • 1964 year built

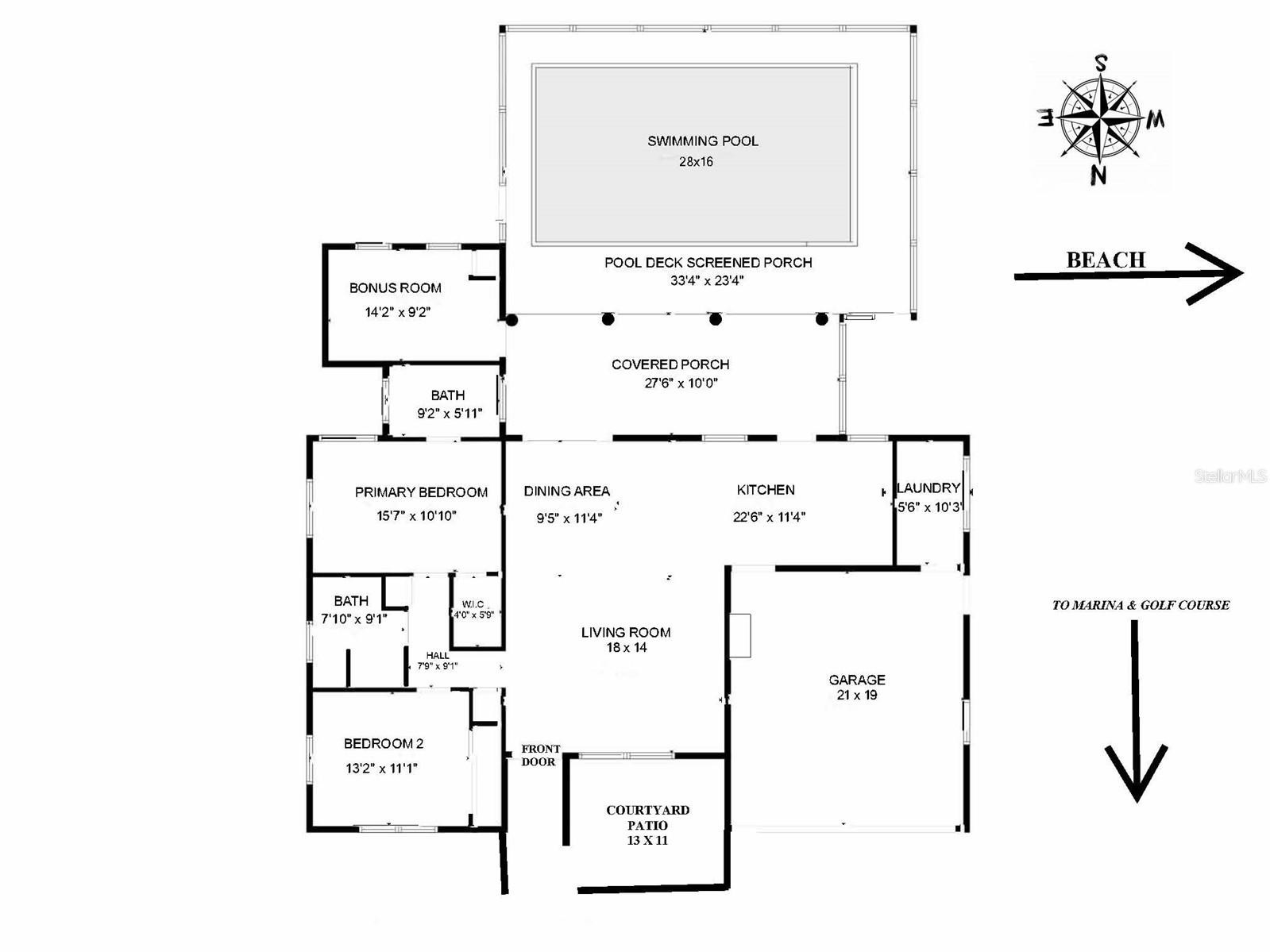
BIG PRICE IMPROVEMENT! Welcome to SORRENTO SOUTH, a fabulous community "WEST OF THE TRAIL" in NOKOMIS BEACH! This wonderful, 1700+ sq foot 2 bedroom+ BONUS ROOM, 2.5 bath POOL HOME sits on an extra-large 16,000-square-foot lot with a fully fenced backyard. The open floor plan features a spacious Great Room that seamlessly flows into the expansive & irresistible covered & screened poolside lanai, measuring an impressive 28x10! The stylish oversized kitchen spans an impressive 23 feet, boasting abundant neutral wood cabinetry, granite countertops with breakfast bar. Upgraded appliances include a sleek stainless-steel hood positioned over the central island, adding both function & modern flair to the space, plus NEW Bosch dishwasher, & NEW Hi-End Professional Frigidaire refrigerator. The Master Suite has vinyl flooring & an updated en-suite bathroom featuring a soaking tub, new vanity, toilet, plus walk-in closet. 2nd bedroom is large enough for two twin beds or a king-size. The DETACHED BONUS ROOM, accessed from the covered lanai is flexible & provides a variety options such as, a perfect guestroom, den, library, home office, or roll all those choices into one with a “Murphy Bed”! Outstanding features & updates of this beautiful home include a “one year new” 50 Year Standing Seam Metal Roof, raised-panel doors throughout, updated interior lighting, freshly painted all interior walls & ceilings, courtyard style patio at the front entry, resurfaced pool, new pool pump, electric service panel, extra-wide driveway, oversized garage with separate laundry room, & a cozy brick-paver firepit, perfect for enjoying cool Florida evenings. Plus so close to the beach at this location, yet NOT IN A FLOOD ZONE! Also, conveniently located right in the Sorrento South community which you can walk to, is the Bayshore Executive Public Golf Club & the marina where an opportunity could be possible for a boat slip rental from a private owner! Lastly, Sorrento South is deed-restricted keeping the neighborhood neat, but the HOA fee is only $300 a year! Embrace the Beach Lifestyle from this outstanding location that offers “back road” access with the preferred mode of transportation of a golf cart or bicycle! Easy, peesy ride to Nokomis Beach, Waterfront dining with Live Music daily, all the conveniences of Publix, pharmacy, dog groomers, nail salon, boutique shopping & a great deal more! Free of charge, experience the Gulf Breezes, sounds of the Waves, Water Birds, glimpse of dolphin & manatee swimming by, the occasional bridge opening, & Vibrant Rotating Colors of sunset Flooding the Sky! Only 10 minutes to Historic Downtown Venice Island, with shopping, dining, live music, weekly farmers market & more. Just a short trip to the World-Famous Siesta Key & Downtown Sarasota. Notably, Nokomis Beach & Casey Key are the ONLY beach communities in the region with no high rises, no traffic jams & an expressway from Tamiami Trail to I-75 creating easy access to I-75 & all nearby airports. The allure of this locale is undeniable, with nature & beauty, carefree easy lifestyle, year-round Sunsets, watersports, bountiful fishing, boating, long walks on the beach, strolling down the beach collecting sharks’ teeth & shells, cookouts & much more! A perfect place to enjoy, invest, or both! Exhale, Relax & Feel Time Stand Still, after all, Nokomis Beach is not just a Place, but a State-of-Mind!

 



201 CAVALLINI DRIVE

Inquire about this home

Berkshire Hathaway HomeServices
Florida Realty

3192 Fruitville Rd, Sarasota, FL 34237


Explore: Sorrento South


Similar Listings

More Single Family Residence for sale near Sorrento South in NOKOMIS Florida


$649K 404 BAYSHORE RD NOKOMIS FL 34275

$639.9K 284 CASERTA CT NOKOMIS FL 34275

$639K 5621 BLUE REEF PL NOKOMIS FL 34275

Listing Broker: AYERS AND ASSOCIATES REAL ESTATE
Last Changed: Sunday 28th of September 2025 06:05:12 PM

All listing information is deemed reliable but not guaranteed and should be independently verified through personal inspection by appropriate professionals. Listings displayed on this website may be subject to prior sale or removal from sale; vailability of any listing should always be independently verified. Listing information is provided for consumer personal, non-commercial use, solely to identify potential properties for potential purchase; all other use is strictly prohibited and may violate relevant federal and state law. Copyright 2021 , Stellar MLS.