$425,000
  • 3 beds
  • 2 baths
  • 1704 sqft
  • 0.35 acres
  • 1996 year built

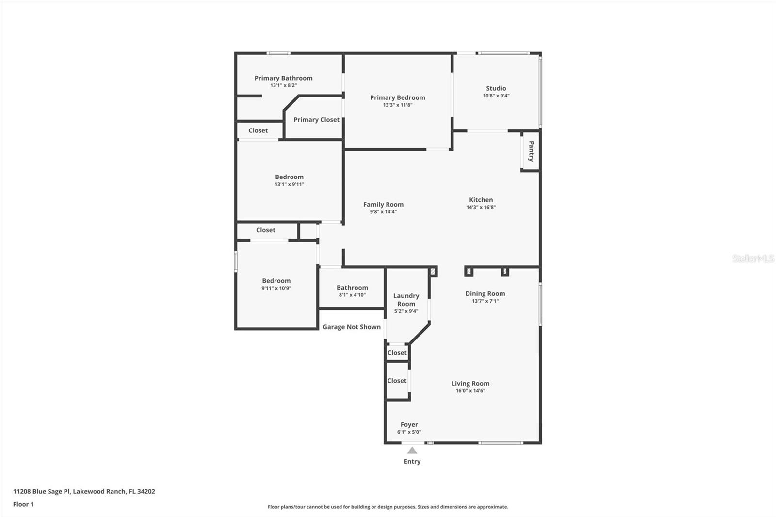
One or more photo(s) has been virtually staged. Welcome to this charming home nestled on a quiet cul-de-sac in the highly sought-after Summerfield Village—one of Lakewood Ranch’s original and most desired communities. This 3-bedroom, 2-bathroom home sits on a generous 1/3-acre fully fenced lot, backing up to lush green space that offers privacy and tranquility in a neighborhood setting. As you approach the welcoming front porch and into a light-filled living and dining area you will instantly feel like you are home. The heart of the home is the open kitchen and family room with soaring ceilings, creating a spacious and connected atmosphere perfect for entertaining. The kitchen features a cozy eat-in area, a large pantry, and a gas stove—a chef’s delight. A gas water heater adds to the home’s energy efficiency. The thoughtfully designed split floorplan includes two bedrooms that share a full bathroom, while the primary suite offers a custom walk-in closet and a beautifully updated zero-entry shower. Need a flexible space? The converted patio provides the perfect solution—ideal for a home office, gym, or playroom. Enjoy low HOA fees and easy access to Summerfield Park, where you’ll find scenic nature trails, tennis and basketball courts, a soccer field, playground, and wide open green spaces. All of this is just minutes from Lakewood Ranch’s vibrant dining, shopping, and entertainment options—with quick access to I-75 for commuting or weekend getaways. This home combines charm, convenience and lifestyle – come see it for yourself!

 



11208 BLUE SAGE PLACE

Inquire about this home

Berkshire Hathaway HomeServices
Florida Realty

3192 Fruitville Rd, Sarasota, FL 34237


Explore: Summerfield Village


Similar Listings

More Single Family Residence for sale near Summerfield Village in LAKEWOOD RANCH Florida


$550K 8408 WHISPERING WOODS CT LAKEWOOD RANCH FL 34202

$550K 10404 PALMBROOKE TER BRADENTON FL 34202

$550K 14322 TREE SWALLOW WAY LAKEWOOD RANCH FL 34202

Listing Broker: MICHAEL SAUNDERS & COMPANY
Last Changed: Saturday 30th of August 2025 03:16:10 AM

All listing information is deemed reliable but not guaranteed and should be independently verified through personal inspection by appropriate professionals. Listings displayed on this website may be subject to prior sale or removal from sale; vailability of any listing should always be independently verified. Listing information is provided for consumer personal, non-commercial use, solely to identify potential properties for potential purchase; all other use is strictly prohibited and may violate relevant federal and state law. Copyright 2021 , Stellar MLS.